Greenaway Lane, Warsash, SO31 9HT

- PROPERTY TYPE
Detached
- BEDROOMS
5
- BATHROOMS
5
- SIZE
Ask agent
- TENUREDescribes how you own a property. There are different types of tenure - freehold, leasehold, and commonhold.Read more about tenure in our glossary page.
Freehold
Key features
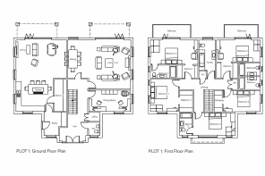
- A self build plot with outline planning permission for a detached family home
- Five bedrooms and three reception rooms
- Five bathrooms & seperate WC
- Nestled away in a country lane
- Fully serviced with sewer, utilities (infrastructure only) road, and communal areas provided
- Generous plot with a Southerly aspect
- Plans ar for a house in-excess of 3000 sq fee
- Garden
Description
An exceptional opportunity has arisen to secure a self-build plot on Greenaway Lane, an idyllic private no-through road set within the heart of Warsash Village, Hampshire. Outline planning permission has been granted for a five-bedroom detached residence on a fully serviced plot, complete with mains gas, water, electricity, mains sewerage, and road access. The scheme also includes a double detached garage.
The surrounding area is rich in natural beauty and lifestyle amenities. Warsash and the nearby Hamble River are renowned for their outstanding yachting and boating facilities, with the Isle of Wight easily reached for day trips. Scenic routes such as the Solent Way provide picturesque walking opportunities, while local pubs—including The Rising Sun, The Silver Fern, and The Hook—offer inviting spaces to relax with friends and family. A pedestrian ferry also links directly to Hamble, adding to the charm and convenience of the location.
Connectivity is another key advantage. The M27 provides swift access between Southampton and Portsmouth, with the M3 offering a direct route to London. Southampton Airport and Parkway Railway Station are approximately 20 minutes away, both providing fast, direct services to London Waterloo.
Would you like to create your bespoke dream home in a peaceful countryside setting? Don't miss out and arrange your SITE VIEWING now.
Disclaimer
Successful buyers will be required to complete online identity checks provided by Lifetime Legal. The cost of these checks is £65 inc. VAT per property and is paid in advance, directly to Lifetime Legal. This charge verifies your identity in line with our obligations as agreed with HMRC and includes mover protection insurance to protect against the cost of an abortive purchase.
Sellers: Upon receipt of instructions to act in the selling of your home, under Anti Money Laundering Regulations (2017) we are required by law to conduct Anti Money Laundering Checks. There is a charge of £65 inc VAT per property.
- COUNCIL TAXA payment made to your local authority in order to pay for local services like schools, libraries, and refuse collection. The amount you pay depends on the value of the property.Read more about council Tax in our glossary page.
- Ask agent
- PARKINGDetails of how and where vehicles can be parked, and any associated costs.Read more about parking in our glossary page.
- Off street
- GARDENA property has access to an outdoor space, which could be private or shared.
- Yes
- ACCESSIBILITYHow a property has been adapted to meet the needs of vulnerable or disabled individuals.Read more about accessibility in our glossary page.
- Ask agent
Energy performance certificate - ask agent
Greenaway Lane, Warsash, SO31 9HT
Add an important place to see how long it'd take to get there from our property listings.
__mins driving to your place
Get an instant, personalised result:
- Show sellers you’re serious
- Secure viewings faster with agents
- No impact on your credit score

Affordability
Notes
Staying secure when looking for property
Ensure you're up to date with our latest advice on how to avoid fraud or scams when looking for property online.
Visit our security centre to find out moreDisclaimer - Property reference chimneypots_41471295. The information displayed about this property comprises a property advertisement. Rightmove.co.uk makes no warranty as to the accuracy or completeness of the advertisement or any linked or associated information, and Rightmove has no control over the content. This property advertisement does not constitute property particulars. The information is provided and maintained by Chimneypots Estate Agents, Southampton. Please contact the selling agent or developer directly to obtain any information which may be available under the terms of The Energy Performance of Buildings (Certificates and Inspections) (England and Wales) Regulations 2007 or the Home Report if in relation to a residential property in Scotland.
*This is the average speed from the provider with the fastest broadband package available at this postcode. The average speed displayed is based on the download speeds of at least 50% of customers at peak time (8pm to 10pm). Fibre/cable services at the postcode are subject to availability and may differ between properties within a postcode. Speeds can be affected by a range of technical and environmental factors. The speed at the property may be lower than that listed above. You can check the estimated speed and confirm availability to a property prior to purchasing on the broadband provider's website. Providers may increase charges. The information is provided and maintained by Decision Technologies Limited. **This is indicative only and based on a 2-person household with multiple devices and simultaneous usage. Broadband performance is affected by multiple factors including number of occupants and devices, simultaneous usage, router range etc. For more information speak to your broadband provider.
Map data ©OpenStreetMap contributors.




