Skip to content
Get brand editions for Kallars, Sidcup

Land At The Paddocks, Well Hill, Orpington, BR6

Guide Price
£850,000
Kallars, Sidcup
PROPERTY TYPE

Plot

SIZE

18,000 sq ft

1,672 sq m

Key features

  • DEVELOPMENT OPPORTUNITY FOR 3x 4-BEDROOM DETACHED BUNGALOWS
  • TOTAL SITE AREA OF 18,000 sq. ft (0.41 acres)
  • CIL EXEMPT
  • VENDOR TO IMPLEMENT PLANNING FOR PLANNING REFERENCE 23/00929/FUL

Description

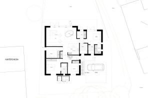
A rare opportunity to acquire a c. 18,000 sq. ft (0.41 acres) site with planning permission for three attractive detached 4-bedroom bungalows. The land is being sold as a single parcel, with planning split across two separate applications as detailed below:

Dwelling 1:
Planning Ref: 24/01412/FUL
Description: Redevelopment of the site; demolition of the existing building and erection of 1no. dwelling with associated works.

Dwellings 2 & 3:
Planning Ref: 23/00929/FUL
Description: Redevelopment of the site; demolition of existing buildings and erection of 2no. dwellings with associated works.

Please note that planning application 23/00929/FUL for the two dwellings is approaching its expiry; however, the vendor will be implementing the planning.

The plot is exempt from CIL fees, as the existing buildings have been offset against the new builds, as confirmed in the attached CIL liability notice.

This site offers an excellent development opportunity in a highly sought-after Orpington location, with three detached bungalows planned in a private, well-positioned setting. The vendor is also open to selling some of the rear paddock to provide additional amenity space for the 2x back land dwellings.

Well Hill benefits from excellent connectivity and is close to major transportation routes, including the A21 and M25, providing easy access to surrounding areas such as Sevenoaks and Orpington. This means you can enjoy the tranquillity of a rural escape while still being well-connected to urban amenities and employment opportunities. Despite its peaceful surroundings, Well Hill is just a short drive away from essential amenities. Nearby towns such as Sevenoaks and Orpington offer a wide range of shops, supermarkets, restaurants, and leisure facilities, ensuring you have everything you need within reach.

For further information including a breakdown of our costings and our GDV, please contact Kallars.

Viewings by appointment ONLY.


Agents Note

We may refer you to recommended providers of ancillary services such as Conveyancing, Financial Services, Insurance and Surveying. We may receive a commission payment fee or other benefit (known as a referral fee) for recommending their services. You are not under any obligation to use the services of the recommended provider. The ancillary service provider may be an associated company of Kallars Property Agents Ltd. 2% (min. £15k) + vat fee applicable.

AML Disclaimer

Please note it is a legal requirement that we require verified ID from purchasers before instructing a sale. Please also note we shall require proof of funds before we instruct the sale, together with your instructed solicitors.

Land At The Paddocks, Well Hill, Orpington, BR6

NEAREST STATIONS

Distances are straight line measurements from the centre of the postcode
  • Knockholt Station1.1 miles
  • Chelsfield Station1.8 miles
  • Shoreham Station2.4 miles
Get brand editions for Kallars, Sidcup

About Kallars, Sidcup

148 Station Road, Sidcup, DA15 7AB
Industry affiliations:

Welcome To Kallars.

We are Kallars, an independent property services provider in South East London and Kent. In line with the changing needs of the buying and selling process, we have evolved from traditional high street estate agents to innovative and forward thinking property agents. We have developed an exciting new concept of estate agency with an approach that is fresh, innovative and results driven.

We have been long established and are highly experienced in the buying and selling of properties. We build on our strengths, as an advanced modern property agency that can provide advice and knowledge to meet the changing needs of our wide ranging clientele, such as first time buyers, upgrading / downsizing, and buy-to-lets, investors and developers.

As well as the more traditional services, we offer a bespoke consultancy service tailored to meet ever-changing aspirations. We offer realistic and achievable advice with the clients' circumstances at the forefront of our minds

Notes

These notes are private, only you can see them.

Disclaimer - Property reference KLL_LND_LFSYCL_1157_1283320411. The information displayed about this property comprises a property advertisement. Rightmove.co.uk makes no warranty as to the accuracy or completeness of the advertisement or any linked or associated information, and Rightmove has no control over the content. This property advertisement does not constitute property particulars. The information is provided and maintained by Kallars, Sidcup. Please contact the selling agent or developer directly to obtain any information which may be available under the terms of The Energy Performance of Buildings (Certificates and Inspections) (England and Wales) Regulations 2007 or the Home Report if in relation to a residential property in Scotland.

Map data ©OpenStreetMap contributors.