
Briery Fields, Witchford, Ely, Cambridgeshire

- PROPERTY TYPE
Detached
- BEDROOMS
5
- BATHROOMS
2
- SIZE
1,636 sq ft
152 sq m
- TENUREDescribes how you own a property. There are different types of tenure - freehold, leasehold, and commonhold.Read more about tenure in our glossary page.
Freehold
Key features
- Detached Family Home
- Three Reception Rooms
- Five Bedrooms (One with En-Suite)
- Family Bathroom
- Double Garage & Parking
- Enclosed Rear Garden
- Central Village Location
Description
WITCHFORD
is a village about 3 miles west of Ely and only about 14 miles from Cambridge. In the village there are public transport facilities to Ely, a preschool, primary school and secondary school, church, public house, sports and social club, post office/general store, garage and Chinese takeaway.
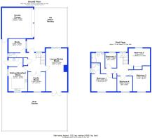
ENTRANCE HALL
With staircase rising to first floor and understairs storage and cupboard. Opaque double glazed window to front aspect, Amtico flooring, radiator. Door to:-
LOUNGE/DINING ROOM
7.52 m x 3.74 m (24'8" x 12'3")
A dual aspect room with double glazed window to front and French doors to rear leading into the garden, radiator, feature open fireplace, laminate flooring.
FAMILY ROOM
3.36 m x 3.02 m (11'0" x 9'11")
With double glazed window to rear and double doors into hallway. Radiator.
KITCHEN/BREAKFAST ROOM
4.25 m x 3.32 m (13'11" x 10'11")
Dual aspect with double glazed windows to side and rear. Fitted with a range of matching wall and base units with worktop space over, tiled splashbacks and inset sink unit with mixer tap. Integrated four-ring Smeg hob with overhead stainless steel extractor hood, integrated oven and microwave, integrated dishwasher and laminate flooring. Door to:-
UTILITY ROOM
With door leading through to the garden. Wall and base units, worktop, sink unit with mixer tap, space for washing machine and tumble drier,
DOWNSTAIRS CLOAKROOM
With opaque double glazed window to side aspect. Fitted with a two piece suite comprising low level WC and wash hand basin with tiled splashbacks. Radiator, tiled flooring.
STUDY
3.00 m x 2.38 m (9'10" x 7'10")
With access to loft, double glazed window to the side, radiator, laminate flooring.
FIRST FLOOR LANDING
With access to loft which is partially boarded with shelving, airing cupboard housing water tank, double glazed window to front aspect.
BEDROOM ONE
4.42 m x 3.04 m (14'6" x 10'0")
With double glazed window to rear, fitted wardrobes, radiator. Door to:-
EN-SUITE SHOWER ROOM
Fitted with a three piece suite comprising shower cubicle, low level WC and wash hand basin with mixer tap. Heated towel rail, opaque window to side aspect, tiled flooring, spotlights.
BEDROOM TWO
3.74 m x 3.69 m (12'3" x 12'1")
With double glazed window to rear aspect, fitted wardrobes, radiator.
BEDROOM THREE
3.72 m x 3.00 m (12'2" x 9'10")
With double glazed window to front aspect, built-in wardrobe with sliding doors, radiator.
BEDROOM FOUR
2.66 m x 2.65 m (8'9" x 8'8")
With double glazed window to rear aspect, radiator.
BEDROOM FIVE
2.76 m x 1.99 m (9'1" x 6'6")
With double glazed window to front aspect, radiator.
FAMILY BATHROOM
Fitted with a three piece suite comprising side panelled 'P' shaped bath with overhead shower head, low level WC and wash hand basin with mixer tap. Tiled splashback surrounds, towel rail, opaque double glazed window to front aspect, tiled flooring and spotlights.
EXTERIOR
The property has two side-by-side parking spaces leading to the double garage. Side gated access leads into the rear garden which is fully enclosed by wooden fence panels and brick wall with an area laid to lawn, decking area, variety of greenery, raised beds and the oil storage tank.
DOUBLE GARAGE
5.45 m x 5.32 m (17'11" x 17'5")
With two separate up and over doors and housing the oil fired boiler with side access leading into the garden via a side passageway. There is also a water tap and electricity connected.
Brochures
Sales Brochure - Briery Fields, Witchford, Ely CB6- COUNCIL TAXA payment made to your local authority in order to pay for local services like schools, libraries, and refuse collection. The amount you pay depends on the value of the property.Read more about council Tax in our glossary page.
- Band: F
- PARKINGDetails of how and where vehicles can be parked, and any associated costs.Read more about parking in our glossary page.
- Yes
- GARDENA property has access to an outdoor space, which could be private or shared.
- Yes
- ACCESSIBILITYHow a property has been adapted to meet the needs of vulnerable or disabled individuals.Read more about accessibility in our glossary page.
- Ask agent
Briery Fields, Witchford, Ely, Cambridgeshire
Add an important place to see how long it'd take to get there from our property listings.
__mins driving to your place
Get an instant, personalised result:
- Show sellers you’re serious
- Secure viewings faster with agents
- No impact on your credit score
Affordability
Notes
Staying secure when looking for property
Ensure you're up to date with our latest advice on how to avoid fraud or scams when looking for property online.
Visit our security centre to find out moreDisclaimer - Property reference PEO-7429. The information displayed about this property comprises a property advertisement. Rightmove.co.uk makes no warranty as to the accuracy or completeness of the advertisement or any linked or associated information, and Rightmove has no control over the content. This property advertisement does not constitute property particulars. The information is provided and maintained by Pocock & Shaw, Ely. Please contact the selling agent or developer directly to obtain any information which may be available under the terms of The Energy Performance of Buildings (Certificates and Inspections) (England and Wales) Regulations 2007 or the Home Report if in relation to a residential property in Scotland.
*This is the average speed from the provider with the fastest broadband package available at this postcode. The average speed displayed is based on the download speeds of at least 50% of customers at peak time (8pm to 10pm). Fibre/cable services at the postcode are subject to availability and may differ between properties within a postcode. Speeds can be affected by a range of technical and environmental factors. The speed at the property may be lower than that listed above. You can check the estimated speed and confirm availability to a property prior to purchasing on the broadband provider's website. Providers may increase charges. The information is provided and maintained by Decision Technologies Limited. **This is indicative only and based on a 2-person household with multiple devices and simultaneous usage. Broadband performance is affected by multiple factors including number of occupants and devices, simultaneous usage, router range etc. For more information speak to your broadband provider.
Map data ©OpenStreetMap contributors.






