
Longley Road, Chichester, PO19

- PROPERTY TYPE
Flat
- BEDROOMS
2
- BATHROOMS
2
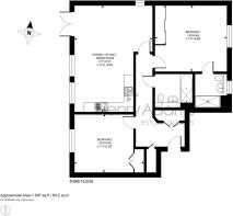
- SIZE
904 sq ft
84 sq m
Key features
- Top floor apartment (stairs and lift)
- 900 sqft
- Open plan kitchen/sitting room
- Two double bedrooms
- En-suite shower room/WC
- Bathroom/WC
- Allocated parking
- Long lease
Description
A spacious and light top floor apartment.
Situated within the highly sought-after Graylingwell development, just north of Chichester city centre, this stylish top floor apartment offers bright and well-proportioned living with views towards the South Downs.
Owned since new, the property features a modern kitchen with integrated appliances, open plan to a spacious dual aspect sitting/dining area with a Juliet balcony, creating a light and sociable space.
The principal bedroom benefits from an en-suite shower room/WC, complemented by a second double bedroom and a bathroom/WC.
Communal heating and hot water are supplied by Graylingwell Energy, providing a convenient and cost-effective solution.
The property also includes an allocated parking space to the front of the development, along with visitor parking.
Lease: 125 years from 01.01.2011
Service Charge: £2,789.40 pa
Ground Rent: N/A
Chichester District Council - 26/27 Tax Band C EPC-C
Directions - Proceed north along College Lane and take the first turning right into Connolly Way. Follow the road along and Longley Road is on the right. The apartment block is a short distance along on the right. W3W - gets.decks.undulation
EPC Rating: C
Parking - Allocated parking
Brochures
Property Brochure- COUNCIL TAXA payment made to your local authority in order to pay for local services like schools, libraries, and refuse collection. The amount you pay depends on the value of the property.Read more about council Tax in our glossary page.
- Band: C
- PARKINGDetails of how and where vehicles can be parked, and any associated costs.Read more about parking in our glossary page.
- Off street
- GARDENA property has access to an outdoor space, which could be private or shared.
- Ask agent
- ACCESSIBILITYHow a property has been adapted to meet the needs of vulnerable or disabled individuals.Read more about accessibility in our glossary page.
- Ask agent
Longley Road, Chichester, PO19
Add an important place to see how long it'd take to get there from our property listings.
__mins driving to your place
Get an instant, personalised result:
- Show sellers you’re serious
- Secure viewings faster with agents
- No impact on your credit score
Affordability
Notes
Staying secure when looking for property
Ensure you're up to date with our latest advice on how to avoid fraud or scams when looking for property online.
Visit our security centre to find out moreDisclaimer - Property reference d2a48dea-a80c-4991-b10a-61ac0f2743cd. The information displayed about this property comprises a property advertisement. Rightmove.co.uk makes no warranty as to the accuracy or completeness of the advertisement or any linked or associated information, and Rightmove has no control over the content. This property advertisement does not constitute property particulars. The information is provided and maintained by Henry Adams, Chichester. Please contact the selling agent or developer directly to obtain any information which may be available under the terms of The Energy Performance of Buildings (Certificates and Inspections) (England and Wales) Regulations 2007 or the Home Report if in relation to a residential property in Scotland.
*This is the average speed from the provider with the fastest broadband package available at this postcode. The average speed displayed is based on the download speeds of at least 50% of customers at peak time (8pm to 10pm). Fibre/cable services at the postcode are subject to availability and may differ between properties within a postcode. Speeds can be affected by a range of technical and environmental factors. The speed at the property may be lower than that listed above. You can check the estimated speed and confirm availability to a property prior to purchasing on the broadband provider's website. Providers may increase charges. The information is provided and maintained by Decision Technologies Limited. **This is indicative only and based on a 2-person household with multiple devices and simultaneous usage. Broadband performance is affected by multiple factors including number of occupants and devices, simultaneous usage, router range etc. For more information speak to your broadband provider.
Map data ©OpenStreetMap contributors.








