
London Road, Calne

- PROPERTY TYPE
Semi-Detached
- BEDROOMS
2
- BATHROOMS
1
- SIZE
Ask agent
- TENUREDescribes how you own a property. There are different types of tenure - freehold, leasehold, and commonhold.Read more about tenure in our glossary page.
Freehold
Key features
- SOUTHERLY LANDSCAPED GARDEN
- FITTED DINING KITCHEN
- TWO LARGE DDOUBLE BEDROOMS
- LIVING ROOM
- STORE/STUDY
- GAS CENTRAL HEATING
- DOUBLE GLAZING
- WET ROOM
- CLOSE TO COUNTRY WALKS
- FRONT PATIO GARDEN
Description
Location - The home is placed on the edge of an area classed as a Heritage Quarter as it is steeped in History. There is the Norman Church and close by is the large Merchants Green surrounded by impressive period homes. There are quaint shops on Church Street and a walkway takes you to St Marys Courtyard which has a Bistro. As you walk down Church Street you will come to Calne centre, passing the river Marden and enjoying a host of facilities. Close by is Castlefields Park and Wenhill Lane which both offer countryside walks. Calne is famous for Wiltshire Ham and the Discovery of Oxygen. The facilities of the town are a short walk away.
Access & Areas Close By - Calne is surrounded by some of the most beautiful countryside that Wiltshire has to offer. The A4 offers routes westerly to Bowood/Derry Hill, Chippenham, Bath and the M4 westbound. To the the north is Lyneham, Royal Wootton Basset, Swindon and the M4 eastbound to London. Easterly along the A4 you will come to the Cherhill White Horse, Historc Avebury, Silbury Hill and then onto Marlborough. The No 55 Bus offers a regular service connecting the train stations of Chippenham and Swindon plus taking in the villages/towns in-between.
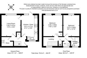
Entrance Hall - Stairs rise to the first floor. Doors give access to the dining kitchen, living room and to the store/study area.
Store/Study Area - 1.75m x 1.70m plus 1.93m x 0.76m (5'9 x 5'7 plus 6 - This area gives multiple options. Extending under the stairs it offers storage plus the space for a home office area. As a utilty space it can accommodate a freezer for example.
Living Room - 4.06m x 3.58m (13'4 x 11'9) - A window offers a view out over the southerly landscaped garden. There is room for a number of sofas and extra furniture to complement.
Dining Kitchen - 4.72m x 2.97m (15'6 x 9'9) - A dual aspect room with a window that views out over the front and a further window looks out over the rear garden. A glazed French door opens onto the rear garden and expands the living space in fine weather. The room is organised to offer a space for a dining table and chairs.
There is a selection of fitted wall and floor cabinets with work surfaces. These include glass fronted display and there are tile finishes. Space has been allowed for a washing machine, fridge and a dryer or freezer. Inset is an oven, hob and a hood over.
First Floor Landing - Doors give access to the bedrooms, wet room and to the separate water closet. There is a window to the front.
Bedroom One - 4.14m x 3.58m with 2.97m ceiling height (13'7 x 11 - Impressive in size this bedroom has a high ceiling and two windows looking out over the rear garden and Church beyond. There is room for a super king size bed and extra items of large bedroom furniture.
Having two windows means that it offers the future possibility of creating two bedrooms and making it a three bedroom home.
Bedroom Two - 3.96m x 2.95m with a 2.97m ceiling height (13' x 9 - Another generous bedroom with space for a super king size bed and extra bedroom furniture. There is a high ceiling and a window views out over the rear garden and Church beyond.
Wet Room - 1.70m x 1.52m (5'7 x 5') - Window to the front. Tiling to the floor and to the walls. Pedestal wash basin. Shower screen and a 'Triton' shower.
Separate Water Closet - 1.37m x 0.81m (4'6 x 2'8) - Window and wall tiling. Water closet.
Exterior - Outlined in a little more detail as follows;
Front Garden - Wall boundary to the front and stairs rise to the front entrance door and enclosed front patio garden. There is a lawn and well stocked flower beds.
Front Patio Garden - In front of the home is an ornamental wall enclosed patio. It offers a view down over the road below and is a good place for seating, plant pot display and taking in the panorama.
Rear Landscaped Southerly Garden - The garden is carefully designed and landscaped to offer areas of different character. Adjacent to the house is a patio area that offers room for outside furniture. There are shaped lawns and well stocked flower beds with mature shrubs and planting. There is a storage shed with windows at the end of the garden and a rear access gate.
Brochures
London Road, CalneBrochure- COUNCIL TAXA payment made to your local authority in order to pay for local services like schools, libraries, and refuse collection. The amount you pay depends on the value of the property.Read more about council Tax in our glossary page.
- Ask agent
- PARKINGDetails of how and where vehicles can be parked, and any associated costs.Read more about parking in our glossary page.
- Ask agent
- GARDENA property has access to an outdoor space, which could be private or shared.
- Yes
- ACCESSIBILITYHow a property has been adapted to meet the needs of vulnerable or disabled individuals.Read more about accessibility in our glossary page.
- Ask agent
London Road, Calne
Add an important place to see how long it'd take to get there from our property listings.
__mins driving to your place
Get an instant, personalised result:
- Show sellers you’re serious
- Secure viewings faster with agents
- No impact on your credit score
Affordability
Notes
Staying secure when looking for property
Ensure you're up to date with our latest advice on how to avoid fraud or scams when looking for property online.
Visit our security centre to find out moreDisclaimer - Property reference 34553641. The information displayed about this property comprises a property advertisement. Rightmove.co.uk makes no warranty as to the accuracy or completeness of the advertisement or any linked or associated information, and Rightmove has no control over the content. This property advertisement does not constitute property particulars. The information is provided and maintained by Butfield Breach, Calne. Please contact the selling agent or developer directly to obtain any information which may be available under the terms of The Energy Performance of Buildings (Certificates and Inspections) (England and Wales) Regulations 2007 or the Home Report if in relation to a residential property in Scotland.
*This is the average speed from the provider with the fastest broadband package available at this postcode. The average speed displayed is based on the download speeds of at least 50% of customers at peak time (8pm to 10pm). Fibre/cable services at the postcode are subject to availability and may differ between properties within a postcode. Speeds can be affected by a range of technical and environmental factors. The speed at the property may be lower than that listed above. You can check the estimated speed and confirm availability to a property prior to purchasing on the broadband provider's website. Providers may increase charges. The information is provided and maintained by Decision Technologies Limited. **This is indicative only and based on a 2-person household with multiple devices and simultaneous usage. Broadband performance is affected by multiple factors including number of occupants and devices, simultaneous usage, router range etc. For more information speak to your broadband provider.
Map data ©OpenStreetMap contributors.








