
Mill Lane, Sidlesham, PO20

- PROPERTY TYPE
Terraced
- BEDROOMS
2
- BATHROOMS
1
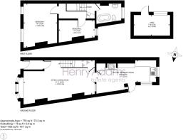
- SIZE
775 sq ft
72 sq m
- TENUREDescribes how you own a property. There are different types of tenure - freehold, leasehold, and commonhold.Read more about tenure in our glossary page.
Freehold
Key features
- A charming blend of character and modern convenience
- Waterside village setting
- Farmland views
- Open plan sitting room/dining room
- Open fireplace
- Classic kitchen
- Two bright bedrooms
- Private cottage garden
Description
Delightful period cottage in an idyllic village setting
Nestled within an idyllic, non-estate village setting just moments from the unspoilt beauty of Pagham Harbour RSPB Nature Reserve, this enchanting period cottage offers an exceptional blend of timeless character and refined modern living. Surrounded by picturesque countryside with open farmland views to the rear, the property enjoys a wonderfully rural atmosphere with an abundance of scenic waterside walks nearby, along with The Crab & Lobster public house/restaurant.
Beautifully presented throughout, the cottage has been thoughtfully arranged to retain its traditional charm while providing the comfort and elegance expected of contemporary living.
At the heart of the home is a bright and inviting dual-aspect open-plan sitting and dining room. This elegant living space is filled with natural light and features a charming bay window alongside a characterful open fireplace, creating a warm and sophisticated setting for both relaxation and entertaining.
The classic Shaker-style kitchen is both stylish and practical, featuring a traditional butler sink and a recessed cooking area with an electric oven and gas hob. A half-glazed door provides direct access to the garden, seamlessly connecting indoor and outdoor living.
Upstairs, the first-floor hosts two beautifully appointed bedrooms, each enhanced by attractive cast-iron fireplace surrounds that reflect the property’s heritage. The luxurious bathroom is elegantly designed, complete with a freestanding bath and a contemporary white suite, offering a tranquil retreat. There is a large loft which opens itself to expanding the accommodation (subject to the necessary planning permissions).
Outside, the property is framed by charming cottage gardens, with a well-kept lawn and mature planted borders providing privacy and a quintessentially English setting for outdoor enjoyment.
Chichester District Council - 26/27 Tax Band D £2,474.28 EPC-C
Directions - From Chichester proceed south on the B2145 Selsey Road. Pass through the village of Hunston and on to Sidlesham. On entering Sidlesham, pass the Sidlesham Memorial Recreation Ground on your right and then after a quarter of a mile turn left into Mill Lane. 1 The Terrace is on the right after a short distance. What3words - sizzled.fire.encroach
EPC Rating: C
Brochures
Property Brochure- COUNCIL TAXA payment made to your local authority in order to pay for local services like schools, libraries, and refuse collection. The amount you pay depends on the value of the property.Read more about council Tax in our glossary page.
- Band: D
- PARKINGDetails of how and where vehicles can be parked, and any associated costs.Read more about parking in our glossary page.
- Ask agent
- GARDENA property has access to an outdoor space, which could be private or shared.
- Private garden
- ACCESSIBILITYHow a property has been adapted to meet the needs of vulnerable or disabled individuals.Read more about accessibility in our glossary page.
- Ask agent
Mill Lane, Sidlesham, PO20
Add an important place to see how long it'd take to get there from our property listings.
__mins driving to your place
Get an instant, personalised result:
- Show sellers you’re serious
- Secure viewings faster with agents
- No impact on your credit score
Affordability
Notes
Staying secure when looking for property
Ensure you're up to date with our latest advice on how to avoid fraud or scams when looking for property online.
Visit our security centre to find out moreDisclaimer - Property reference 403bf125-5115-4f08-92de-6c119380ea89. The information displayed about this property comprises a property advertisement. Rightmove.co.uk makes no warranty as to the accuracy or completeness of the advertisement or any linked or associated information, and Rightmove has no control over the content. This property advertisement does not constitute property particulars. The information is provided and maintained by Henry Adams, Chichester. Please contact the selling agent or developer directly to obtain any information which may be available under the terms of The Energy Performance of Buildings (Certificates and Inspections) (England and Wales) Regulations 2007 or the Home Report if in relation to a residential property in Scotland.
*This is the average speed from the provider with the fastest broadband package available at this postcode. The average speed displayed is based on the download speeds of at least 50% of customers at peak time (8pm to 10pm). Fibre/cable services at the postcode are subject to availability and may differ between properties within a postcode. Speeds can be affected by a range of technical and environmental factors. The speed at the property may be lower than that listed above. You can check the estimated speed and confirm availability to a property prior to purchasing on the broadband provider's website. Providers may increase charges. The information is provided and maintained by Decision Technologies Limited. **This is indicative only and based on a 2-person household with multiple devices and simultaneous usage. Broadband performance is affected by multiple factors including number of occupants and devices, simultaneous usage, router range etc. For more information speak to your broadband provider.
Map data ©OpenStreetMap contributors.








