The Ellington, Laverton Oaks, Kirkby Malzeard, Ripon, HG4

- PROPERTY TYPE
Semi-Detached
- BEDROOMS
3
- BATHROOMS
1
- SIZE
Ask agent
- TENUREDescribes how you own a property. There are different types of tenure - freehold, leasehold, and commonhold.Read more about tenure in our glossary page.
Freehold
Key features
- 10 Year Warranty
- Modern & sustainable accommodation
- Quartz worktops (excluding utility)
- High-quality integrated appliances
- Porcelanosa tiles and Cormar Sensation carpets
- Turfed front and rear Gardens
- Heating system using Air Source Heat Pumps
- 10 Year Builders Warranty with ICW
Description
**STAMP DUTY PAID UP TO £8,750**
The Ellington: 3 bedroom semi detached home comprising of bespoke interior, private garden and air source heating.
*** STAMP DUTY PAID UP TO £8,750 ***
Welcome to Laverton Oaks, an exclusive development of 33 beautifully designed homes in the picturesque village of Kirkby Malzeard. Offering a carefully considered mix of 3 and 4 bedroom terrace, semi-detached, and detached properties, this new community has something to offer buyers at every stage of life. Whether you're a first-time buyer, a growing family, or looking to downsize and embrace the rural lifestyle, Laverton Oaks combines high-quality design with an enviable location.
Prices start at £375,000
The Ellington is a spacious and stylish three-bedroom semi-detached home, thoughtfully designed for modern living. It features an open-plan living and dining area that creates a bright and welcoming hub of the home—perfect for everyday life and entertaining guests. A well-appointed kitchen, a convenient downstairs WC, and useful storage space complete the ground floor, while upstairs you'll find three generously sized bedrooms and a family bathroom.
Outside, the property benefits from private parking and a lawned garden, ideal for relaxing outdoors or for children to play. As part of this quality development, The Ellington comes with a ten-year structural warranty, offering lasting peace of mind.
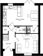
GROUND FLOOR
Kitchen/Dining: 19'00" x 11'00"
Living Rooad: 12'00" x 10'00"
WC: 5'00" x 3'00"
Utility: 3'00" x 3'00"
FIRST FLOOR
Bedroom 1: 15'00" x 9'00"
Bedroom 2: 12'00" x 10'00"
Bedroom 3: 10'00" x 8'00"
Bathroom: 7'00" x 6'00"
Multiple plots of The Ellington are available, giving buyers flexibility in choosing their preferred position and potential to personalise elements of the interior, depending on build stage. Enquire with the team today to avoid missing out.
Fantastic proximity to the well-regarded Kirkby Malzeard Church of England Primary School, which is just a short walk away. Additionally, Laverton Oaks falls within the catchment area for the highly sought-after Ripon Grammar School—only a 12-minute drive—making this a great choice for families.
With its strong sense of community, scenic surroundings, and exceptional quality, Laverton Oaks is a rare opportunity to own a beautiful new home in one of North Yorkshire’s most desirable villages.
* Subject to build schedule
** Photographs are for illustrative purposes only
*** Subject to criteria and not in conjunction with any other incentive
Brochures
Particulars- COUNCIL TAXA payment made to your local authority in order to pay for local services like schools, libraries, and refuse collection. The amount you pay depends on the value of the property.Read more about council Tax in our glossary page.
- Band: TBC
- PARKINGDetails of how and where vehicles can be parked, and any associated costs.Read more about parking in our glossary page.
- Driveway
- GARDENA property has access to an outdoor space, which could be private or shared.
- Yes
- ACCESSIBILITYHow a property has been adapted to meet the needs of vulnerable or disabled individuals.Read more about accessibility in our glossary page.
- Ask agent
Energy performance certificate - ask agent
The Ellington, Laverton Oaks, Kirkby Malzeard, Ripon, HG4
Add an important place to see how long it'd take to get there from our property listings.
__mins driving to your place
Get an instant, personalised result:
- Show sellers you’re serious
- Secure viewings faster with agents
- No impact on your credit score
Affordability
Notes
Staying secure when looking for property
Ensure you're up to date with our latest advice on how to avoid fraud or scams when looking for property online.
Visit our security centre to find out moreDisclaimer - Property reference LLN250004. The information displayed about this property comprises a property advertisement. Rightmove.co.uk makes no warranty as to the accuracy or completeness of the advertisement or any linked or associated information, and Rightmove has no control over the content. This property advertisement does not constitute property particulars. The information is provided and maintained by Linley & Simpson, Ripon. Please contact the selling agent or developer directly to obtain any information which may be available under the terms of The Energy Performance of Buildings (Certificates and Inspections) (England and Wales) Regulations 2007 or the Home Report if in relation to a residential property in Scotland.
*This is the average speed from the provider with the fastest broadband package available at this postcode. The average speed displayed is based on the download speeds of at least 50% of customers at peak time (8pm to 10pm). Fibre/cable services at the postcode are subject to availability and may differ between properties within a postcode. Speeds can be affected by a range of technical and environmental factors. The speed at the property may be lower than that listed above. You can check the estimated speed and confirm availability to a property prior to purchasing on the broadband provider's website. Providers may increase charges. The information is provided and maintained by Decision Technologies Limited. **This is indicative only and based on a 2-person household with multiple devices and simultaneous usage. Broadband performance is affected by multiple factors including number of occupants and devices, simultaneous usage, router range etc. For more information speak to your broadband provider.
Map data ©OpenStreetMap contributors.






