
Hangar Drive, Tangmere, PO20

- PROPERTY TYPE
Flat
- BEDROOMS
2
- BATHROOMS
1
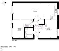
- SIZE
721 sq ft
67 sq m
Key features
- 45% shared ownership
- Bright spacious accommodation
- Overlooking large central greensward
- Open living space
- Two bedrooms
- Bathroom
- Security entry phone system
- Allocated parking
- Popular village location
Description
A light and modern apartment in village location.
This smartly presented first-floor apartment offers bright, modern living within a small purpose-built block of just six homes. Perfectly positioned in a sought-after village location, it enjoys an attractive outlook over a central greensward, creating a peaceful and welcoming setting.
A secure entry phone system opens into the communal hall with stairs to all floors. Inside, the apartment features a generous entrance hall leading through to a sunny dual aspect living space. The kitchen is fitted with integrated appliances, an electric oven, gas hob and cooker hood, along with a comprehensive range of cupboards with space and plumbing for a washing machine, making it both stylish and practical for everyday living and entertaining. The adjoining sitting area provides a spacious and relaxing place to unwind.
The property offers two good-sized bedrooms and a modern bathroom complete with a shower over the bath. Additional benefits include an allocated parking space and access to a shared bike shed, enhancing both convenience and lifestyle.
With its bright interiors, contemporary finish, and prime village setting, this home is an ideal choice for those seeking a stylish, low-maintenance place to live.
Lease; 125 years from 5th December 2016
Ground rent: N/A
Service charge £1492.56 for 2026
Chichester District Council - 26/27 Tax Band B £1,926.50 EPC-B
Directions - From Chichester proceed east on the A27. At the Tangmere/Boxgrove roundabout take the third exit into Meadow Way (signposted Tangmere). Take the forth turning on the left into Hangar Drive. Proceeding into Hangar Drive with the greensward on your right, the apartment block is on the left. What3words - marching.deeply.duties
EPC Rating: B
Parking - Allocated parking
Brochures
Property Brochure- COUNCIL TAXA payment made to your local authority in order to pay for local services like schools, libraries, and refuse collection. The amount you pay depends on the value of the property.Read more about council Tax in our glossary page.
- Band: B
- PARKINGDetails of how and where vehicles can be parked, and any associated costs.Read more about parking in our glossary page.
- Off street
- GARDENA property has access to an outdoor space, which could be private or shared.
- Ask agent
- ACCESSIBILITYHow a property has been adapted to meet the needs of vulnerable or disabled individuals.Read more about accessibility in our glossary page.
- Ask agent
Hangar Drive, Tangmere, PO20
Add an important place to see how long it'd take to get there from our property listings.
__mins driving to your place
Get an instant, personalised result:
- Show sellers you’re serious
- Secure viewings faster with agents
- No impact on your credit score
Affordability
Notes
Staying secure when looking for property
Ensure you're up to date with our latest advice on how to avoid fraud or scams when looking for property online.
Visit our security centre to find out moreDisclaimer - Property reference 85d59b67-92ca-4619-a28d-0d88b7165aa6. The information displayed about this property comprises a property advertisement. Rightmove.co.uk makes no warranty as to the accuracy or completeness of the advertisement or any linked or associated information, and Rightmove has no control over the content. This property advertisement does not constitute property particulars. The information is provided and maintained by Henry Adams, Chichester. Please contact the selling agent or developer directly to obtain any information which may be available under the terms of The Energy Performance of Buildings (Certificates and Inspections) (England and Wales) Regulations 2007 or the Home Report if in relation to a residential property in Scotland.
*This is the average speed from the provider with the fastest broadband package available at this postcode. The average speed displayed is based on the download speeds of at least 50% of customers at peak time (8pm to 10pm). Fibre/cable services at the postcode are subject to availability and may differ between properties within a postcode. Speeds can be affected by a range of technical and environmental factors. The speed at the property may be lower than that listed above. You can check the estimated speed and confirm availability to a property prior to purchasing on the broadband provider's website. Providers may increase charges. The information is provided and maintained by Decision Technologies Limited. **This is indicative only and based on a 2-person household with multiple devices and simultaneous usage. Broadband performance is affected by multiple factors including number of occupants and devices, simultaneous usage, router range etc. For more information speak to your broadband provider.
Map data ©OpenStreetMap contributors.








