
Hungerdown Lane, Lawford, Manningtree, Essex, CO11
- PROPERTY TYPE
Land
- SIZE
26,136 sq ft
2,428 sq m
Key features
- Outstanding rural position
- Plot of approximately 0.6 acres (STS)
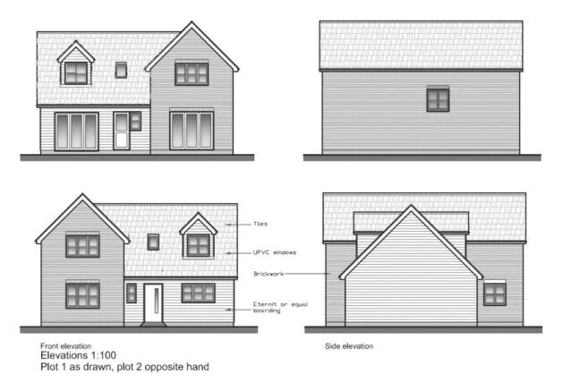
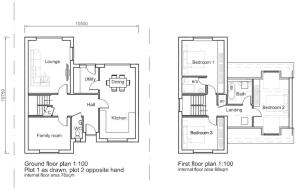
- Full planning for two, three bedroom dwellings
- Under Tendring reference 22/01423/FUL
Description
Brochures
ParticularsHungerdown Lane, Lawford, Manningtree, Essex, CO11
NEAREST STATIONS
Distances are straight line measurements from the centre of the postcode- Manningtree Station1.7 miles
- Mistley Station2.9 miles
- Hythe Station4.9 miles
Notes
Disclaimer - Property reference DDH260237. The information displayed about this property comprises a property advertisement. Rightmove.co.uk makes no warranty as to the accuracy or completeness of the advertisement or any linked or associated information, and Rightmove has no control over the content. This property advertisement does not constitute property particulars. The information is provided and maintained by Kingsleigh Residential, Dedham. Please contact the selling agent or developer directly to obtain any information which may be available under the terms of The Energy Performance of Buildings (Certificates and Inspections) (England and Wales) Regulations 2007 or the Home Report if in relation to a residential property in Scotland.
Map data ©OpenStreetMap contributors.






