
Axe Road, Drimpton - RURAL LOCATION

- PROPERTY TYPE
Cottage
- BEDROOMS
2
- BATHROOMS
1
- SIZE
Ask agent
- TENUREDescribes how you own a property. There are different types of tenure - freehold, leasehold, and commonhold.Read more about tenure in our glossary page.
Freehold
Key features
- Two Double Bedrooms
- End Terrace Cottage
- Approximately 0.15 Of An Acre
- Driveway Parking & Garage
- No Onward Chain
- Cloakroom & Conservatory
Description
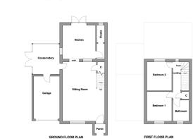
Entrance Porch - Door to:
Sitting/Dining Room - 6.63m x 4.72m (21'9 x 15'6) - With windows to the front and rear aspect, original cast iron fireplace, additional fireplace with multi-fuel stove, two radiators, television point and stairs rising to the first floor with a storage cupboard under.
Kitchen - 3.99m x 3.71m (13'1 x 12'2) - With a window to the side aspect and French doors to the rear opening out onto the garden. Fitted kitchen comprising wall and base units, drawers and work surfaces over, stainless steel sink/drainer, electric oven, ceramic hob and an extractor fan over. Space for washing machine, fridge/freezer, radiator and tiling to all splash prone areas.
Rear Lobby -
Cloakroom - With a window to the rear aspect, low level WC, wash hand basin, electric heater and a radiator.
Conservatory - 3.61m x 3.05m (11'10 x 10'0) - With windows, french doors opening out into the garden and tiled flooring. Door into garage.
Landing - With a window to the rear aspect, cupboard and access to the loft.
Bedroom One - 3.30m x 2.90m (10'10 x 9'6) - With a window to the front aspect, radiator and beautiful views across farmland.
Bedroom Two - 3.23m x 2.90m (10'7 x 9'6) - With a window to the rear aspect, radiator and views over neighbouring countryside.
Bathroom - With a window to the front aspect. Suite comprising bath with shower over, low level WC, wash hand basin, extractor fan, heated towel rail and tiling to all splash prone areas.
Outside - To the front the garden is partially enclosed by hedging, laid to lawn and a shingled driveway parking area which leads to the garage. To the side and rear, there is a large patio area, flower beds, shrubs, lawn and fruit trees.
Garage - 4.78m x 2.92m (15'8 x 9'7) - Up and over door, light, power and wall mounted gas central heating boiler for heating and hot water.
Agents Note - Council Tax Band - C. Mains water, electric and drainage. Calor gas central heating, combi boiler installed in December 2018. The neighbouring property has a pedestrian right of way to the rear of the property.
Brochures
Axe Road, Drimpton - RURAL LOCATION- COUNCIL TAXA payment made to your local authority in order to pay for local services like schools, libraries, and refuse collection. The amount you pay depends on the value of the property.Read more about council Tax in our glossary page.
- Band: C
- PARKINGDetails of how and where vehicles can be parked, and any associated costs.Read more about parking in our glossary page.
- Yes
- GARDENA property has access to an outdoor space, which could be private or shared.
- Yes
- ACCESSIBILITYHow a property has been adapted to meet the needs of vulnerable or disabled individuals.Read more about accessibility in our glossary page.
- Ask agent
Axe Road, Drimpton - RURAL LOCATION
Add an important place to see how long it'd take to get there from our property listings.
__mins driving to your place
Get an instant, personalised result:
- Show sellers you’re serious
- Secure viewings faster with agents
- No impact on your credit score
Affordability
Notes
Staying secure when looking for property
Ensure you're up to date with our latest advice on how to avoid fraud or scams when looking for property online.
Visit our security centre to find out moreDisclaimer - Property reference 34591890. The information displayed about this property comprises a property advertisement. Rightmove.co.uk makes no warranty as to the accuracy or completeness of the advertisement or any linked or associated information, and Rightmove has no control over the content. This property advertisement does not constitute property particulars. The information is provided and maintained by Mayfair Town & Country, Crewkerne. Please contact the selling agent or developer directly to obtain any information which may be available under the terms of The Energy Performance of Buildings (Certificates and Inspections) (England and Wales) Regulations 2007 or the Home Report if in relation to a residential property in Scotland.
*This is the average speed from the provider with the fastest broadband package available at this postcode. The average speed displayed is based on the download speeds of at least 50% of customers at peak time (8pm to 10pm). Fibre/cable services at the postcode are subject to availability and may differ between properties within a postcode. Speeds can be affected by a range of technical and environmental factors. The speed at the property may be lower than that listed above. You can check the estimated speed and confirm availability to a property prior to purchasing on the broadband provider's website. Providers may increase charges. The information is provided and maintained by Decision Technologies Limited. **This is indicative only and based on a 2-person household with multiple devices and simultaneous usage. Broadband performance is affected by multiple factors including number of occupants and devices, simultaneous usage, router range etc. For more information speak to your broadband provider.
Map data ©OpenStreetMap contributors.








