
Chalder Lane, Sidlesham, PO20

- PROPERTY TYPE
Detached
- BEDROOMS
4
- BATHROOMS
3
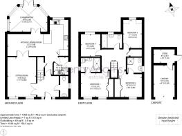
- SIZE
1,572 sq ft
146 sq m
- TENUREDescribes how you own a property. There are different types of tenure - freehold, leasehold, and commonhold.Read more about tenure in our glossary page.
Freehold
Key features
- Conveniently located just five miles south of Chichester
- Sitting room
- Impressive open plan kitchen/dining/breakfast room
- Conservatory
- Four bedrooms
- Two en-suite shower rooms and family bathroom
- Separate utility
- Beautifully landscaped gardens
- Gravel driveway with ample parking
- Detached timber garage
Description
A stunning detached country home.
A most attractive and beautifully presented four-bedroom detached home, one of just three bespoke properties built in 2003, offered in true show-home condition throughout.
Set in a glorious rural location surrounded by open countryside, yet conveniently situated just five miles south of Chichester, this exceptional home perfectly combines tranquillity with accessibility.
The property welcomes you with a spacious and inviting entrance hall, complete with a cloakroom. Double doors lead through to a comfortable sitting room featuring a charming wood-burning stove, creating a warm and cosy atmosphere. Further double doors open into the dining room, enhancing the sense of flow and space.
The generous L-shaped dining room seamlessly connects to the open-plan kitchen/breakfast room, ideal for modern living and entertaining. The kitchen is fitted with classic shaker-style cabinetry, integrated double oven, ceramic hob with cooker hood, fridge freezer and dishwasher, all complemented by extensive worktops and a granite breakfast bar. A separate utility room provides additional practicality.
A conservatory, accessed from the dining area, overlooks the beautifully landscaped rear garden and the open field beyond, offering a peaceful and scenic outlook.
Upstairs, the first floor hosts four well-proportioned bedrooms, all enjoying delightful countryside views. The principal and guest bedrooms both benefit from en-suite shower rooms, while the remaining bedrooms are served by a family bathroom.
Externally, the property features a gravel driveway providing ample parking, along with a detached timber single garage incorporating a useful garden store to the rear (garage doors currently removed but retained).
The rear garden is a true highlight, thoughtfully landscaped with a decked seating area, extensive lawn, two patios, and mature shrub borders on either side. At the far end, a post-and-rail fence opens onto the surrounding countryside, enhancing the sense of space and privacy.
Note: The property has oil central heating and sewage treatment plant.
Chichester District Council - 26/27 Tax Band F £3,573.96 EPC-C
Directions - From Chichester proceed south on the B2145 Selsey Road. Pass through the village of Hunston and on to Sidlesham. On entering Sidlesham, turn left before The Anchor public house into Church Lane, which proceeds into Chalder Lane. Continue along Chalder Lane passing the The Cat & Rabbit Rescue Centre on you right. Continue for approximately 0.2 of a mile and the property is on your left. what3words.com - nooks.clogging.drummers
EPC Rating: C
Parking - Car port
Parking - Driveway
Brochures
Property Brochure- COUNCIL TAXA payment made to your local authority in order to pay for local services like schools, libraries, and refuse collection. The amount you pay depends on the value of the property.Read more about council Tax in our glossary page.
- Band: F
- PARKINGDetails of how and where vehicles can be parked, and any associated costs.Read more about parking in our glossary page.
- Covered,Driveway
- GARDENA property has access to an outdoor space, which could be private or shared.
- Private garden
- ACCESSIBILITYHow a property has been adapted to meet the needs of vulnerable or disabled individuals.Read more about accessibility in our glossary page.
- Ask agent
Chalder Lane, Sidlesham, PO20
Add an important place to see how long it'd take to get there from our property listings.
__mins driving to your place
Get an instant, personalised result:
- Show sellers you’re serious
- Secure viewings faster with agents
- No impact on your credit score
Affordability
Notes
Staying secure when looking for property
Ensure you're up to date with our latest advice on how to avoid fraud or scams when looking for property online.
Visit our security centre to find out moreDisclaimer - Property reference 90474df8-384d-450d-b417-a4f017e1a9b8. The information displayed about this property comprises a property advertisement. Rightmove.co.uk makes no warranty as to the accuracy or completeness of the advertisement or any linked or associated information, and Rightmove has no control over the content. This property advertisement does not constitute property particulars. The information is provided and maintained by Henry Adams, Chichester. Please contact the selling agent or developer directly to obtain any information which may be available under the terms of The Energy Performance of Buildings (Certificates and Inspections) (England and Wales) Regulations 2007 or the Home Report if in relation to a residential property in Scotland.
*This is the average speed from the provider with the fastest broadband package available at this postcode. The average speed displayed is based on the download speeds of at least 50% of customers at peak time (8pm to 10pm). Fibre/cable services at the postcode are subject to availability and may differ between properties within a postcode. Speeds can be affected by a range of technical and environmental factors. The speed at the property may be lower than that listed above. You can check the estimated speed and confirm availability to a property prior to purchasing on the broadband provider's website. Providers may increase charges. The information is provided and maintained by Decision Technologies Limited. **This is indicative only and based on a 2-person household with multiple devices and simultaneous usage. Broadband performance is affected by multiple factors including number of occupants and devices, simultaneous usage, router range etc. For more information speak to your broadband provider.
Map data ©OpenStreetMap contributors.








