Benkaz, 154 Station Road, Shotts, ML7 4BA
Size
Ask agent
Tenure
Freehold
EPC
Parking
Ask agent
- Primary use
- Restaurant
Key features
- 90 Covers
- Refurbished to a High Standard
- Fully Equipped Commercial Kitchen
- Fully Licensed
- Car Park (5)
- Energy Rating G
- Christie & Co Ref: 5265419
Description
An excellent opportunity is now available to acquire a profitable family business. Our clients have owned the restaurant for 16 years and are looking to retire from the trade which allows for a new operator to grow an already successful business.
The property has been extended and refurbished to a high standard and would suit a variety of concepts although it trades exceptionally well at the moment as an Italian restaurant.
The business is located on Station Road in Shotts, a town in North Lanarkshire with a population of around 8,000. The M8, which links Edinburgh to Glasgow, is around 10 miles from the town centre and is easily accessed. To the the south is the A71 which also connects Edinburgh to the M74.
Benkaz Italian Restaurant is part of the main leisure circuit within the town centre and is surrounded by retail shops, bars and takeaways. Shotts Golf Club is a short drive to the East.
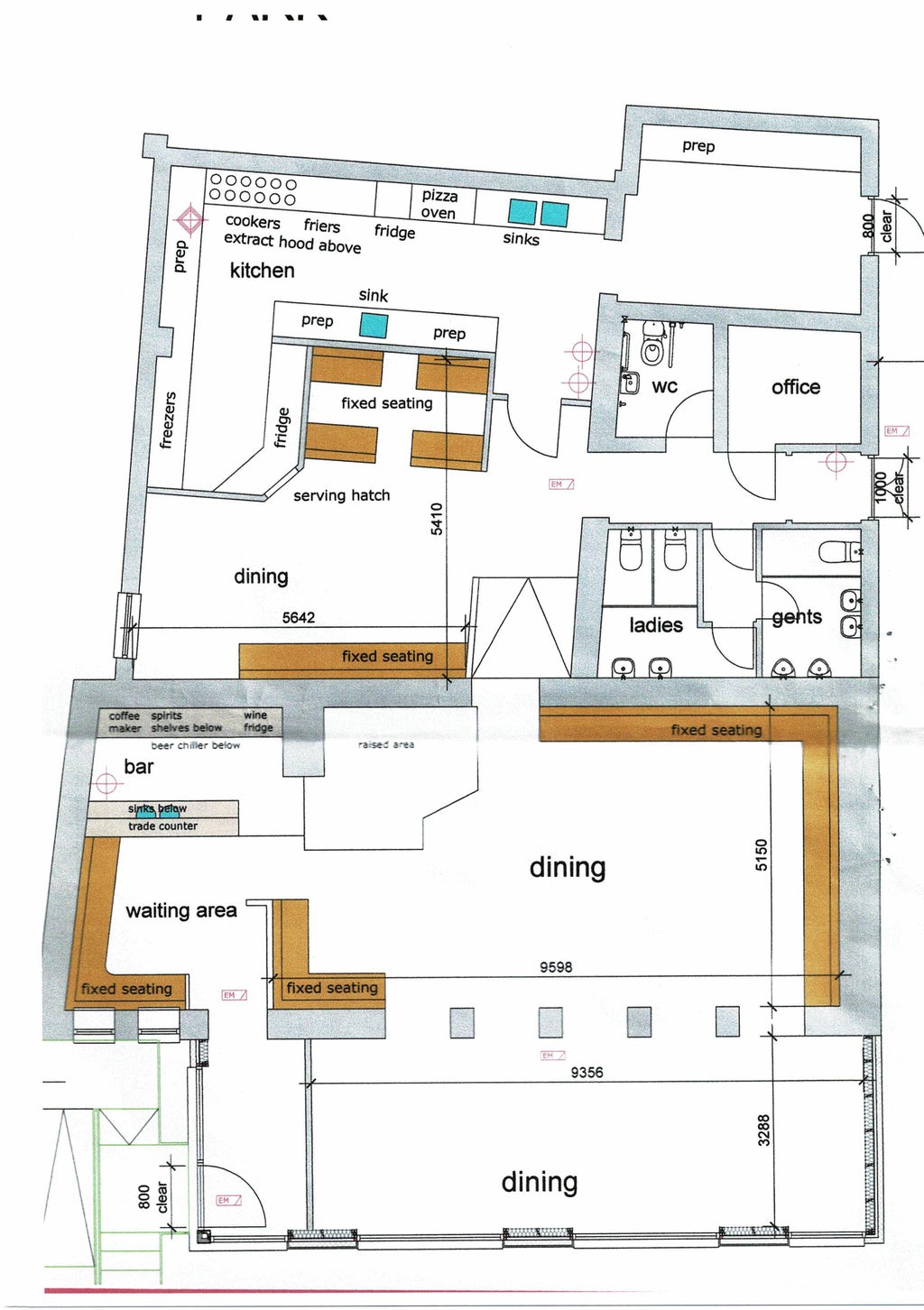
A small ramp and stairs lead to the main entrance lobby area with the bar situated in front, as you enter. The main dining area has been refurbished to a high standard and can accommodate around 50 covers, with the spacious extension to the right accommodating an additional 30 covers.
There is also additional seating for around 20, an office, male and female toilets as well as a large fully fitted commercial kitchen which is located to the rear.
All fixtures and fittings are included within the sale (excluding any personal items).
External DetailsA detached single storey property and extension under a pitched and slated roof.
A small seating area to the side can accommodate 10, and there is a car park is to the rear for around five cars.
An excellent opportunity has become available to purchase a well known and popular business located in the town centre of Shotts. Our clients have owned the property since 2009 and have now reluctantly decided to sell to focus on other business interests.
Benkaz is well known for their freshly prepared chicken, beef, pizza and pasta dishes although the property would be well suited to a variety of different concepts.
Our clients boast great reviews via Google and TripAdvisor and have a built a great following on Facebook.
The business website can be found here - Benkaz
Full trading information will be provided to interested parties after a formal viewing.
Trading HoursMonday - Closed
Tuesday and Wednesday
5.00pm to 8.00pm
Thursday - Closed
Friday
5.00pm to 8.00pm
Saturday and Sunday
3.00pm to 8.00pm
Freehold
Business RatesAccording to the Scottish Assessors, the business qualifies for 100% rates relief under the 'small business bonus scheme'.
RegulatoryPremises Licence
- Service charge
- Ask agent
- Business rates
- Ask agent
- Use class
- Ask agent
- Listed building
- Ask agent
- Business for sale
- Yes
An Energy Performance certificate helps you understand the current energy efficiency of a property.
Read more about EPC requirementsAsk agent
- BREEAM rating
- Ask agent
- Environmental description
- Ask agent
Brochure
Benkaz, 154 Station Road, Shotts, ML7 4BA
We’re the leading specialist advisor for buying and selling businesses in our sectors - hotels, pubs, restaurants, childcare, healthcare, convenience retail, leisure and medical.
If you’re looking to buy or sell a business in our specialist sectors – from a pharmacy in Sussex to a hotel in Austria – our expert advice and collaborative support will help you achieve your goals. You may be an independent first-time buyer or a multinational adding to your portfolio; either way, you’ll discover that our personalised service is focused on helping you achieve your ambitions.
Clients have access to our carefully managed network of potential buyers. This unique database of contacts has been continually developed by our advanced IT capabilities and benefits from both our years of experience developing our network and our wide geographical coverage.
Where we work
We employ the largest team of sector specialists in the UK and the largest group of hotel specialists in Europe, providing professional brokerage and advisory services from offices in major cities across Britain and Europe. And because we’ve been doing this for over 80 years, we know our sectors and local markets inside out. We work closely with our clients to guide and conclude transactions of any size, covering hotels, restaurants and pubs, leisure, forecourts and convenience retail businesses, social care and elderly care, childcare & education facilities, dental practices and pharmacies.
Our professional services
We offer unrivalled insight, experience and expertise across your choice of services, including brokerage, consultancy, finance, development, investment, surveying, rent reviews, dispute resolution, corporate valuation, and turnaround & recovery. These services are all underpinned by our in-depth market intelligence and leading-edge technology. And we’re accredited by the Royal Institution of Chartered Surveyors (RICS), so you can trust in our professionalism.
What makes us tick
Businesses are about people, so relationships matter to us. We bring an integrity and transparency to business which can be all too rare – and that’s why people trust us. Our clients will attest to our genuine desire to help achieve their objectives, our attention to detail, and our tireless hard work on their behalf. We understand that buying a business can bring its own pressures and strains; needs can change, plans may need to be adjusted, and opportunities can come and go. But we’re always here, a constant, flexible and reliable force you can count on.
Our opening hours for all offices:
Mon – Fri, 9am – 5.30pm
Your search history
You have no recent searches
Disclaimer - Property reference 5265419-fh. The information displayed about this property comprises a property advertisement. Rightmove.co.uk makes no warranty as to the accuracy or completeness of the advertisement or any linked or associated information, and Rightmove has no control over the content. This property advertisement does not constitute property particulars. The information is provided and maintained by Christie Owen & Davies Ltd, Pubs & Restaurants. Please contact the selling agent or developer directly to obtain any information which may be available under the terms of The Energy Performance of Buildings (Certificates and Inspections) (England and Wales) Regulations 2007 or the Home Report if in relation to a residential property in Scotland.









