Fairways Wine Bar, 39 Water Street, Rhyl, LL18 1SR
Size
Ask agent
Tenure
Freehold
EPC
Parking
Ask agent
- Primary use
- Bar or nightclub
Key features
- Experience led bar with tenant in place
- Seven letting apartments all tenanted
- Interactive darts, karaoke, golf and pool
- Opportunity to improve trade
- Accounts available
- EPC Ratings available
- Christie & Co Ref: 5652113
Description
Fairways is a contemporary, sports‑themed, experience‑led cocktail bar arranged across multiple trading areas designed to maximise customer engagement and dwell time. The interior has been fitted to a high standard, offering an inviting and vibrant atmosphere suitable for a wide range of occasions—from casual gatherings to celebratory nights out. With a focus on interactive entertainment and modern socialising, the venue combines style, comfort, and functionality to deliver a versatile hospitality environment.
LocationFairways Wine Bar occupies a prominent position on Water Street in the heart of Rhyl, a busy coastal town that continues to benefit from significant regeneration and sustained visitor numbers throughout the year. The property is well placed to capture both local custom and passing trade, with its close proximity to the seafront, town centre amenities, and major transport links. This accessible location makes it an ideal venue for both residents and tourists seeking high‑quality leisure and entertainment options.
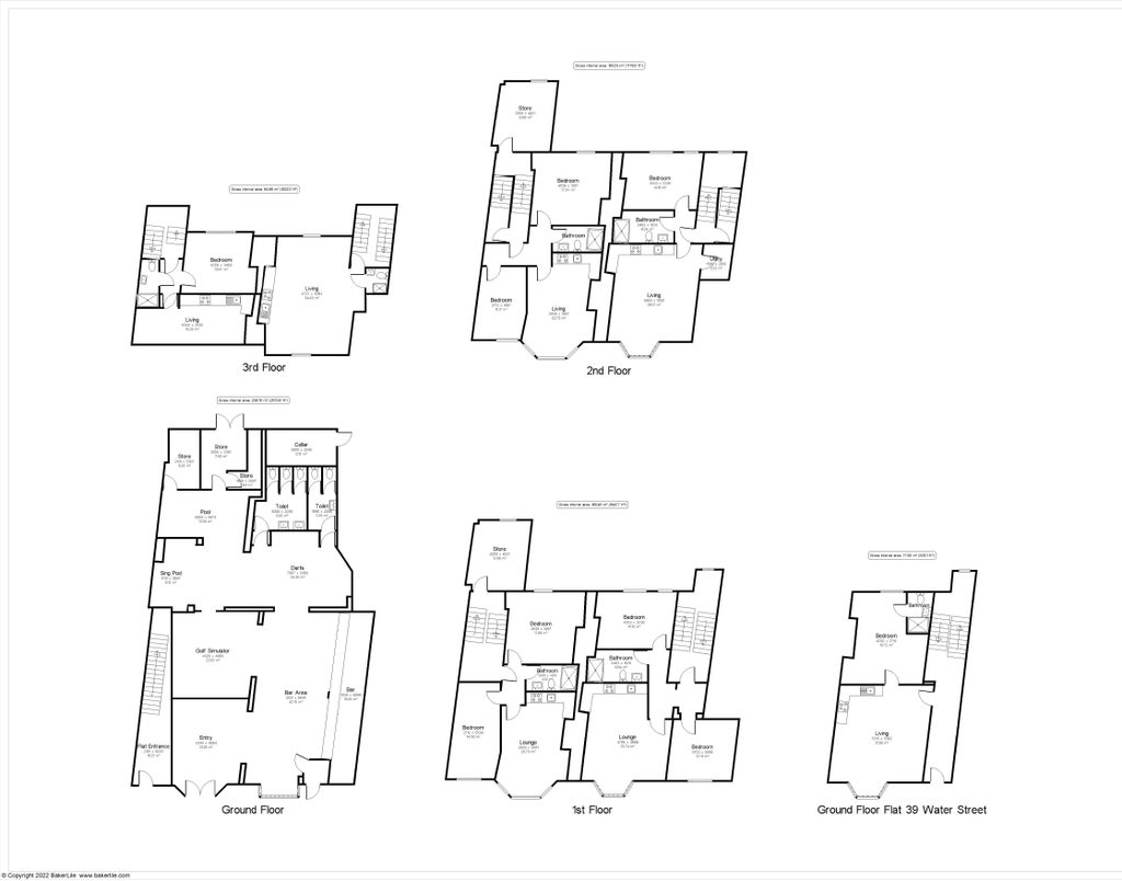
Internal DetailsThe bar is centred around a spacious main servery that efficiently supports the various trading areas throughout the venue. Fairways offers an immersive customer experience with high‑quality leisure attractions including multiple pool tables, a state‑of‑the‑art golf simulator, interactive darts, and a dedicated karaoke booth. These features encourage repeat visits and group bookings, catering perfectly to sports enthusiasts, gamers, and those seeking fun, memorable nights out. The layout flows naturally between zones, allowing operators to run multiple offers and events simultaneously.
Fixtures & FittingsWe have been advised that the majority of the fixtures and fittings are owned outright and will be included in the sale, subject to an inventory.
Letting AccommodationAbove the commercial trading areas are seven self‑contained residential flats, all fully rented on Assured Shorthold Tenancies. The accommodation provides a secure and reliable additional income stream, producing a combined monthly rental income of £4,400. This makes the property especially attractive to investors seeking a mixed‑use opportunity with both strong business potential and stable passive income.
The OpportunityFairways Wine Bar represents a rare chance to acquire a well‑equipped, experience‑driven hospitality venue in a thriving coastal location, supported by a substantial and consistent rental uplift from the upper‑floor flats. The business is ideally suited to operators looking to capitalise on the growing demand for interactive leisure and premium social spaces. With its impressive specification, diversified revenue streams, and strong local profile, the property offers significant scope for continued growth and development under new ownership
Business RatesThe Rateable Value is ÂŁ12,750 with effect from April 2023. Confirmation of actual business rates payable should be obtained from the local authority.
RegulatoryPremises Licence
- Service charge
- Ask agent
- Business rates
- Ask agent
- Use class
- Ask agent
- Listed building
- No
- Business for sale
- Yes
An Energy Performance certificate helps you understand the current energy efficiency of a property.
Read more about EPC requirementsAsk agent
- BREEAM rating
- Ask agent
- Environmental description
- Ask agent
Brochure
Fairways Wine Bar, 39 Water Street, Rhyl, LL18 1SR
We’re the leading specialist advisor for buying and selling businesses in our sectors - hotels, pubs, restaurants, childcare, healthcare, convenience retail, leisure and medical.
If you’re looking to buy or sell a business in our specialist sectors – from a pharmacy in Sussex to a hotel in Austria – our expert advice and collaborative support will help you achieve your goals. You may be an independent first-time buyer or a multinational adding to your portfolio; either way, you’ll discover that our personalised service is focused on helping you achieve your ambitions.
Clients have access to our carefully managed network of potential buyers. This unique database of contacts has been continually developed by our advanced IT capabilities and benefits from both our years of experience developing our network and our wide geographical coverage.
Where we work
We employ the largest team of sector specialists in the UK and the largest group of hotel specialists in Europe, providing professional brokerage and advisory services from offices in major cities across Britain and Europe. And because we’ve been doing this for over 80 years, we know our sectors and local markets inside out. We work closely with our clients to guide and conclude transactions of any size, covering hotels, restaurants and pubs, leisure, forecourts and convenience retail businesses, social care and elderly care, childcare & education facilities, dental practices and pharmacies.
Our professional services
We offer unrivalled insight, experience and expertise across your choice of services, including brokerage, consultancy, finance, development, investment, surveying, rent reviews, dispute resolution, corporate valuation, and turnaround & recovery. These services are all underpinned by our in-depth market intelligence and leading-edge technology. And we’re accredited by the Royal Institution of Chartered Surveyors (RICS), so you can trust in our professionalism.
What makes us tick
Businesses are about people, so relationships matter to us. We bring an integrity and transparency to business which can be all too rare – and that’s why people trust us. Our clients will attest to our genuine desire to help achieve their objectives, our attention to detail, and our tireless hard work on their behalf. We understand that buying a business can bring its own pressures and strains; needs can change, plans may need to be adjusted, and opportunities can come and go. But we’re always here, a constant, flexible and reliable force you can count on.
Our opening hours for all offices:
Mon – Fri, 9am – 5.30pm
Your search history
You have no recent searches
Disclaimer - Property reference 5652113-fh. The information displayed about this property comprises a property advertisement. Rightmove.co.uk makes no warranty as to the accuracy or completeness of the advertisement or any linked or associated information, and Rightmove has no control over the content. This property advertisement does not constitute property particulars. The information is provided and maintained by Christie Owen & Davies Ltd, Pubs & Restaurants. Please contact the selling agent or developer directly to obtain any information which may be available under the terms of The Energy Performance of Buildings (Certificates and Inspections) (England and Wales) Regulations 2007 or the Home Report if in relation to a residential property in Scotland.















