
Telscombe Road, Peacehaven, BN10 7UB

- PROPERTY TYPE
Detached
- BEDROOMS
6
- BATHROOMS
3
- SIZE
Ask agent
- TENUREDescribes how you own a property. There are different types of tenure - freehold, leasehold, and commonhold.Read more about tenure in our glossary page.
Freehold
Key features
- 6 Bedroom Detached House
- Prime Location
- No Onward Chain
- Off Road Parking
Description
This 6 bedroom detached home is being offered with no onward chain and is situated in a prime location on a sought-after road in north Peacehaven, this impressive property offers a harmonious blend of modernity and functionality. Perfectly positioned to take advantage of the serene down land walks, local amenities, and convenient bus services to Brighton City Centre, this home epitomises the essence of convenient living.
Spanning over three floors, the residence features an expansive layout, comprising six generously sized bedrooms that offer versatile living arrangements to accommodate varying needs.
The heart of the home is the modern kitchen, complete with high gloss units and a selection of built-in appliances, creating a culinary haven for all cooking enthusiasts.
The open-plan design seamlessly integrates the south-facing L-shaped lounge, kitchen, and dining area, enhancing the feeling of space and light throughout the home. Additionally, a utility room and cloakroom WC provide practicality and convenience for daily living.
The property boasts a family bathroom and two en-suites, all elegantly appointed with modern white suites that exude sophistication and style. The ample accommodation extends to a large private drive that offers off-road parking for multiple vehicles, ensuring effortless convenience for residents and guests alike.
Stepping outside, a generously proportioned south-facing rear garden provides a tranquil retreat, ideal for relaxing and entertaining in the open air. The potential for al fresco dining and outdoor activities further enhances the appeal of this exquisite property.
In essence, this meticulously designed property is a testament to modern living, offering a harmonious balance of style and functionality. With its exceptional location and array of contemporary features, this residence presents an unparallelled opportunity to embrace a lifestyle of comfort and convenience.
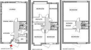
ENTRANCE HALL
SOUTH FACING LOUNGE/KITCHEN/DINING ROOM 34’5” x 21’2” (10.50m x 6.46m)
UTILITY ROOM 6’2” x 5’9” (1.88m x 1.75m)
CLOAKROOM/WC 6’1” x 4’9” (1.85m x 1.45m)
FIRST FLOOR LANDING
SOUTH FACING BEDROOM 3 14’2” x 11’7” (4.33m x 3.52m)
EN-SUITE SHOWER ROOM/WC 9’10” into shower cubicle x 3’8” (2.99m x 1.11m)
BEDROOM 4 11’1” x 10’5” (3.37m x 3.17m)
BEDROOM 5 11’10” x 10’3” (3.60m x 3.12m)
SOUTH FACING BEDROOM 6 15’11” x 6’7” (4.86m x 2.00m)
BATHROOM/SHOWER ROOM/WC 10’7” into shower cubicle x 6’7” (3.22m x 2.00)
SECOND FLOOR LANDING
SOUTH FACING BEDROOM 1 16’4” x 15’10” (4.98m x 4.83m)
BEDROOM 2 16’4” x 11’ (4.98m x 3.35m)
SHOWER ROOM/WC 6’6” x 6’6” (1.98m x 1.98m)
These particulars are prepared diligently and all reasonable steps are taken to ensure their accuracy. Neither the company or a seller will however be under any liability to any purchaser or prospective purchaser in respect of them. The description, Dimensions and all other information is believed to be correct, but their accuracy is no way guaranteed. The services have not been tested. Any floor plans shown are for identification purposes only and are not to scale Directors: Paul Carruthers Stephen Luck
EPC Rating: B
Brochures
Property Brochure- COUNCIL TAXA payment made to your local authority in order to pay for local services like schools, libraries, and refuse collection. The amount you pay depends on the value of the property.Read more about council Tax in our glossary page.
- Band: F
- PARKINGDetails of how and where vehicles can be parked, and any associated costs.Read more about parking in our glossary page.
- Yes
- GARDENA property has access to an outdoor space, which could be private or shared.
- Private garden
- ACCESSIBILITYHow a property has been adapted to meet the needs of vulnerable or disabled individuals.Read more about accessibility in our glossary page.
- Ask agent
Telscombe Road, Peacehaven, BN10 7UB
Add an important place to see how long it'd take to get there from our property listings.
__mins driving to your place
Get an instant, personalised result:
- Show sellers you’re serious
- Secure viewings faster with agents
- No impact on your credit score


Your mortgage
Notes
Staying secure when looking for property
Ensure you're up to date with our latest advice on how to avoid fraud or scams when looking for property online.
Visit our security centre to find out moreDisclaimer - Property reference 32fbc57d-76da-422b-a1fa-c6e56c00ade4. The information displayed about this property comprises a property advertisement. Rightmove.co.uk makes no warranty as to the accuracy or completeness of the advertisement or any linked or associated information, and Rightmove has no control over the content. This property advertisement does not constitute property particulars. The information is provided and maintained by Carruthers and Luck, Peacehaven. Please contact the selling agent or developer directly to obtain any information which may be available under the terms of The Energy Performance of Buildings (Certificates and Inspections) (England and Wales) Regulations 2007 or the Home Report if in relation to a residential property in Scotland.
*This is the average speed from the provider with the fastest broadband package available at this postcode. The average speed displayed is based on the download speeds of at least 50% of customers at peak time (8pm to 10pm). Fibre/cable services at the postcode are subject to availability and may differ between properties within a postcode. Speeds can be affected by a range of technical and environmental factors. The speed at the property may be lower than that listed above. You can check the estimated speed and confirm availability to a property prior to purchasing on the broadband provider's website. Providers may increase charges. The information is provided and maintained by Decision Technologies Limited. **This is indicative only and based on a 2-person household with multiple devices and simultaneous usage. Broadband performance is affected by multiple factors including number of occupants and devices, simultaneous usage, router range etc. For more information speak to your broadband provider.
Map data ©OpenStreetMap contributors.