
Red Lane, Burton Green

- PROPERTY TYPE
Semi-Detached
- BEDROOMS
3
- BATHROOMS
1
- SIZE
Ask agent
- TENUREDescribes how you own a property. There are different types of tenure - freehold, leasehold, and commonhold.Read more about tenure in our glossary page.
Freehold
Key features
- Semi Rural Property
- Countryside Views
- Two/Three Bedrooms
- Attractive Well Stocked Gardens
- Double Garage To Rear
- EPC Rating D
Description
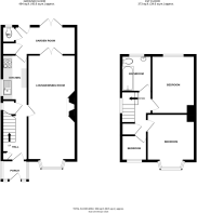
ENTRANCE HALL Having radiator, central heating programmer, dado rail, telephone point and understairs storage cupboard.
LOUNGE/DINER 10' 2" x 24' 8" (3.1m x 7.52m) With large bay window offering beautiful views across the well loved front garden and towards open countryside. Feature fireplace professionally installed and fitted by Manor House Fires of Kenilworth. Dado rail, two radiators, TV aerial and broadband connection.
GALLEY KITCHEN 5' 6" x 9' 7" (1.68m x 2.92m) Having a range of cupboard and drawer units with matching wall cupboards, Franke one and a half bowl steel sink unit, Neff four ring hob with extractor hood over, wall mounted Neff double oven with cupboards above and pan drawers below. Round edged worksurfaces and ceramic tiling.
GARDEN ROOM 6' 7" x 11' 3" (2.01m x 3.43m) Having French double doors leading to the rear garden, glazed double doors providing access to the lounge/diner and personal door to the garden patio. There is a utility storage cupboard with space and plumbing for washing machine and tumble dryer.
CLOAKROOM Having a WC.
FIRST FLOOR LANDING With smoke detector, access to roof storage space and built in storage cupboard with shelving.
BEDROOM ONE 11' 8" x 9' 5" (3.56m x 2.87m) With bay window offering views of the open countryside. Picture rail, radiator and range of built in bedroom furniture to include a chest of drawers unit, bedside tables, double sized bed head and further drawer unit.
BEDROOM TWO 12' 2" x 9' 4" (3.71m x 2.84m) A second double bedroom to the rear of the property boasts further views of the garden and open fields. Radiator.
STUDY/NURSERY 5' 7" x 5' 6" (1.7m x 1.68m) Located to the front of the property with countryside views. Wall mounted Vaillant combination boiler. This room has been a bedroom and can be a nursery or home office.
BATHROOM 6' 4" x 7' 9" (1.93m x 2.36m) A modern and spacious bathroom having panelled bath with shower over and glazed screen. Pedestal wash basin and WC, radiator and heated towel rail, complimentary tiling and extractor fan.
OUTSIDE
FRONT GARDEN An attractive and well maintained front garden with an area of lawn, rose beds and mature shrubs including hydrangeas. A gate and path at the side leads to:
REAR GARDEN A sunny rear garden with a paved patio and two steps down to the area of lawn with stepping stone paving leading to the garage and rear gated access. The garden enjoys a high degree of privacy with open farmland and countryside to the rear. Timber shed. Outside Tap.
DOUBLE GARAGE 15' 9" x 16' 1" (4.8m x 4.9m) Access from Red Lane via a driveway leads to the rear of the houses which then leads to this double garage. Up and over door, light, power and personal door into the rear garden.
Brochures
Red Lane Brochure- COUNCIL TAXA payment made to your local authority in order to pay for local services like schools, libraries, and refuse collection. The amount you pay depends on the value of the property.Read more about council Tax in our glossary page.
- Band: D
- PARKINGDetails of how and where vehicles can be parked, and any associated costs.Read more about parking in our glossary page.
- Garage
- GARDENA property has access to an outdoor space, which could be private or shared.
- Yes
- ACCESSIBILITYHow a property has been adapted to meet the needs of vulnerable or disabled individuals.Read more about accessibility in our glossary page.
- Ask agent
Red Lane, Burton Green
Add an important place to see how long it'd take to get there from our property listings.
__mins driving to your place
Get an instant, personalised result:
- Show sellers you’re serious
- Secure viewings faster with agents
- No impact on your credit score

Your mortgage
Notes
Staying secure when looking for property
Ensure you're up to date with our latest advice on how to avoid fraud or scams when looking for property online.
Visit our security centre to find out moreDisclaimer - Property reference 103644001629. The information displayed about this property comprises a property advertisement. Rightmove.co.uk makes no warranty as to the accuracy or completeness of the advertisement or any linked or associated information, and Rightmove has no control over the content. This property advertisement does not constitute property particulars. The information is provided and maintained by Julie Philpot, Kenilworth. Please contact the selling agent or developer directly to obtain any information which may be available under the terms of The Energy Performance of Buildings (Certificates and Inspections) (England and Wales) Regulations 2007 or the Home Report if in relation to a residential property in Scotland.
*This is the average speed from the provider with the fastest broadband package available at this postcode. The average speed displayed is based on the download speeds of at least 50% of customers at peak time (8pm to 10pm). Fibre/cable services at the postcode are subject to availability and may differ between properties within a postcode. Speeds can be affected by a range of technical and environmental factors. The speed at the property may be lower than that listed above. You can check the estimated speed and confirm availability to a property prior to purchasing on the broadband provider's website. Providers may increase charges. The information is provided and maintained by Decision Technologies Limited. **This is indicative only and based on a 2-person household with multiple devices and simultaneous usage. Broadband performance is affected by multiple factors including number of occupants and devices, simultaneous usage, router range etc. For more information speak to your broadband provider.
Map data ©OpenStreetMap contributors.





