
2 bedroom house for sale
High Street, Littleport, Ely, Cambridgeshire

- PROPERTY TYPE
House
- BEDROOMS
2
- BATHROOMS
1
- SIZE
947 sq ft
88 sq m
- TENUREDescribes how you own a property. There are different types of tenure - freehold, leasehold, and commonhold.Read more about tenure in our glossary page.
Freehold
Key features
- Spacious Open Plan Ground Floor Living Room/Kitchen
- Downstairs Cloakroom
- Two Bedrooms
- Bathroom
- Double Glazing & Gas Central Heating
- Enclosed Rear Garden
- Parking To Rear
- No Upward Chain
Description
LITTLEPORT
is a large village situated about 6 miles north of the Cathedral City of Ely. There are shopping facilities, a sports centre and public transport facilities including a railway station on the Ely to Kings Lynn and Kings Cross lines. There are two primary schools in the village, along with a recently opened Littleport & East Cambs Academy and a further special needs school. The village is by-passed giving easy access to Cambridge, which is about 20 miles away.
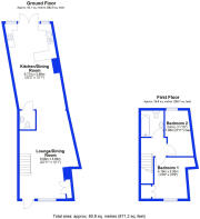
LOUNGE/DINING ROOM
6.98 m x 3.69 m (22'11" x 12'1")
with entrance door and double glazed window to front aspect, storage cupboard, staircase rising to first floor. Three radiators, fireplace recess, leading through to:-
KITCHEN/DINING ROOM
6.77 m x 3.68 m (22'3" x 12'1")
with two double glazed windows and double glazed patio doors opening to rear aspect. Fitted with a matching range of wall and base units with work surfaces over and inset single drainer sink unit. Four ring gas hob with stainless steel splashback, extractor hood over and built-in electric oven below. Space and plumbing for washing machine. Vinyl flooring.
DOWNSTAIRS CLOAKROOM
Fitted with a two piece suite comprising low level WC and wash hand basin. Extractor fan, vinyl flooring.
FIRST FLOOR LANDING
with hatch to roof space and radiator.
BEDROOM ONE
4.18 m x 3.26 m (13'9" x 10'8")
with double glazed window to front aspect. Built-in cupboard and radiator.
BEDROOM TWO
3.61 m x 1.80 m (11'10" x 5'11")
with double glazed window to rear aspect. Radiator.
BATHROOM
Fitted with a three piece suite comprising low level WC, wash hand basin and panel enclosed bath with mixer tap and shower over. Tiled splashbacks, extractor fan and radiator.
EXTERIOR
Enclosed rear garden with gated pedestrian access which in turn leads to a parking space with vehicular access from Upton Lane.
AGENTS NOTE
The seller has notified us that the property will be professionally painted prior to the completion of the sale.
Brochures
Sales Details- High Street, Littleport, Ely CB61HE- COUNCIL TAXA payment made to your local authority in order to pay for local services like schools, libraries, and refuse collection. The amount you pay depends on the value of the property.Read more about council Tax in our glossary page.
- Band: B
- PARKINGDetails of how and where vehicles can be parked, and any associated costs.Read more about parking in our glossary page.
- Yes
- GARDENA property has access to an outdoor space, which could be private or shared.
- Yes
- ACCESSIBILITYHow a property has been adapted to meet the needs of vulnerable or disabled individuals.Read more about accessibility in our glossary page.
- Ask agent
High Street, Littleport, Ely, Cambridgeshire
Add an important place to see how long it'd take to get there from our property listings.
__mins driving to your place
Get an instant, personalised result:
- Show sellers you’re serious
- Secure viewings faster with agents
- No impact on your credit score
Your mortgage
Notes
Staying secure when looking for property
Ensure you're up to date with our latest advice on how to avoid fraud or scams when looking for property online.
Visit our security centre to find out moreDisclaimer - Property reference PEO-7399. The information displayed about this property comprises a property advertisement. Rightmove.co.uk makes no warranty as to the accuracy or completeness of the advertisement or any linked or associated information, and Rightmove has no control over the content. This property advertisement does not constitute property particulars. The information is provided and maintained by Pocock & Shaw, Ely. Please contact the selling agent or developer directly to obtain any information which may be available under the terms of The Energy Performance of Buildings (Certificates and Inspections) (England and Wales) Regulations 2007 or the Home Report if in relation to a residential property in Scotland.
*This is the average speed from the provider with the fastest broadband package available at this postcode. The average speed displayed is based on the download speeds of at least 50% of customers at peak time (8pm to 10pm). Fibre/cable services at the postcode are subject to availability and may differ between properties within a postcode. Speeds can be affected by a range of technical and environmental factors. The speed at the property may be lower than that listed above. You can check the estimated speed and confirm availability to a property prior to purchasing on the broadband provider's website. Providers may increase charges. The information is provided and maintained by Decision Technologies Limited. **This is indicative only and based on a 2-person household with multiple devices and simultaneous usage. Broadband performance is affected by multiple factors including number of occupants and devices, simultaneous usage, router range etc. For more information speak to your broadband provider.
Map data ©OpenStreetMap contributors.






