Terraced Houses For Sale in BA (Postcode Area)
A beautifully presented two bedroom terraced home offering modern living throughout. Stylishy updated, this delightful property is perfect for first time buyers, small families, or investors seeking a property that is ready to move straight into. Located a stones throw away from the town. CALL NOW!
A well presented three bedroom terraced home set in this lovely setting overlooking a lake & greenery with an abundance of wildlife on the doorstep, set in the grounds of Barwick Park, The home benefits from well proportioned accommodation, communal gardens, patio area, a lovely grotto area at th...
In the heart of popular Weston Village, this two bedroom end terrace home offers convenient living close to the RUH, excellent schools, and local amenities. Featuring a new kitchen, spacious sitting room opening to a private garden with brick-built shed, and two well proportioned bedrooms. No chain.
An immaculately presented home with 5 years remaining of an NHBC warranty. The current owners upgraded the specification when it was bought and have spent time improving even further. LVT wood effect flooring continues seamlessly from the entrance hall, through to the kitchen & dining room. The ...
Nestled in the ever-popular Odd Down area of Bath, this delightful 2-bedroom terraced house offers the perfect blend of comfort, practicality, and location. Whether you're a first-time buyer, young family, or investor, this property ticks all the right boxes. The house compromises of: ...
Beautifully presented throughout, this bright three-bedroom home offers spacious living with a welcoming lounge/diner, modern kitchen and a low-maintenance rear and front garden. The property benefits from gas central heating, double glazing, neutral décor and a nearby garage. Move-in r...
A delightful period cottage in a sought after village location. The accommodation comprises 2 bedrooms, bathroom, living room and kitchen diner. There is a generous garden to the rear which boasts amazing views of the local countryside. Viewing comes highly recommended.
Stylish 3-bed terraced home with spacious living, modern kitchen, cloakroom, and family bathroom. Three well-proportioned bedrooms, including two doubles. Just a short walk to local shops, schools, and Castle Cary mainline railway station.
A brand new two bedroom property of exceptional proportions, boasting 888 sq feet (82.5 sq metres) of thoughtfully arranged accommodation, forming part of a small select new development of just five new homes. Ideally positioned for those seeking new home comfort in an an idyllic village setting,...
This home is being sold for the first time in over 40 years! A wonderfully sized property overall which would appeal to those looking for a home to mould into their own. Located in the popular village of Oakhill, Coronation Terrace is a terrace of 9 properties located off of High Street and tucke...
Stylish 3-bed terraced home with spacious living, modern kitchen, cloakroom, and family bathroom. Three well-proportioned bedrooms, including two doubles. Just a short walk to local shops, schools, and Castle Cary mainline railway station.
Stylish 3-bed terraced home with spacious living, modern kitchen, cloakroom, and family bathroom. Three well-proportioned bedrooms, including two doubles. Just a short walk to local shops, schools, and Castle Cary mainline railway station.
*** NEW LISTING *** A Charming Two-Bedroom Mews Cottage in Over 55's Development – In Mere Town Centre A delightful two-bedroom character property in an exclusive over 55’s community, just a short walk from Mere town centre. Offering flexible ground floor living, the property fe...
A delightful extended end terrace two bedroom cottage that is offered with no onward chain. This charming property is located in the beautiful village of Crockerton. The home has a private drive offering parking, and a lovely rear garden with patio and lawned areas. Viewing highly advised.&nbs...
Offered to the market with no onward chain, can be found this well presented two bedroom mid terrace home, situated in a popular residential area nearby a range of convenient local amenities. Found on the Frome Road to the south of the city, the property is served by excellent nearby bus...
Nestled in a peaceful location, this spacious, well-appointed family home offers a harmonious blend of comfort and practicality across three floors. With generous living spaces, four bedrooms, a garage, and an inviting rear garden featuring a patio and pond, this property is ideal for modern fami...
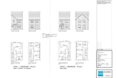
We are proud to announce a stunning new-build development in what used to be the Constitutional Club in Castle Cary. The site is being marketed off plan, with completion for the build estimated to be early autumn 2025. The site will feature nine, three bedroom properties all with rear gardens,...
We are proud to announce a new-build development in what used to be the Constitutional Club in Castle Cary. The site is being marketed off plan, with completion for the build estimated to be early autumn 2025. The site will feature nine, three bedroom properties all with rear gardens, allocate...
A beautifully presented, fully modernised Grade II listed 2-bedroom cottage, which has the benefit of large gardens and a useful outbuilding with light and power connected. The property, which is offered for sale with no onward chain, has a fantastic fitted kitchen and a large sitting ro...
A good sized three bedroom house offered for sale with no onward chain. The property has the benefit of a ground floor cloakroom and has been extended with a large conservatory to the rear. Within easy reach of a popular primary school and a level walk into the city centre.
'This beautiful, quite unique cottage is set in a pretty village location enjoying lots of characterful cottage features and has a far reaching, scenic countryside view from the rear elevation!' Located in 'old Coleford' this charming 2/3 bedroom mid terrace cottage has accommodation set over ...
We are proud to announce a new-build development in what used to be the Constitutional Club in Castle Cary. The site is being marketed off plan, with completion for the build estimated to be early autumn 2025. The site will feature nine, three bedroom properties all with rear gardens, allocate...



















































































































































