1 results
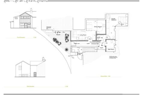
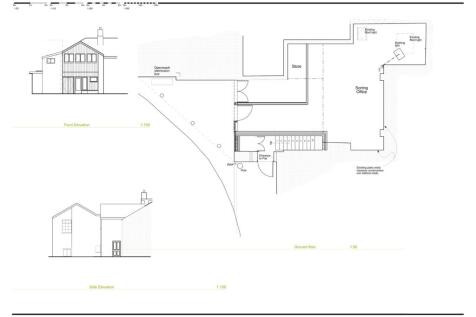
A development/conversion opportunity to acquire a former Sorting Office with planning consent to convert into a ground floor leasehold town central apartment. A brand new 999 year lease to be granted with a peppercorn ground rent.
Copyright © 2000-2025 Rightmove Group Limited. All rights reserved. Rightmove prohibits the scraping of its content. You can find further details here.