Auction Properties For Sale in Coseley, Bilston, West Midlands
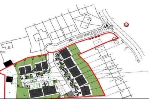
FOR SALE BY MODERN AUCTION T & C'S APPLY. Residential Development Opportunity – Rookery Road/ Bayliss Avenue, Wolverhampton Freehold site approx. 1.31 acres (0.53 ha) in a popular, well-connected location. Includes an existing 3-bed detached house and lapsed planning permis...
FOR SALE BY MODERN AUCTION T & C'S APPLY. Residential Development Opportunity – Rookery Road/ Bayliss Avenue, Wolverhampton Freehold site approx. 1.31 acres (0.53 ha) in a popular, well-connected location. Includes an existing 3-bed detached house and lapsed planning permis...
Situated in a popular residential area, this well maintained three bedroom semi-detached home is for sale by way of The Modern Method of Auction. Offered for sale with no upward chain and offering excellent potential, the property is ideally located close to local amenities including shops, schoo...
***CASH OFFERS ONLY DUE TO LEASE HAVING 59 YEARS REMAINING******SOLD WITH SITTING TENANT***For sale via THE MODERN METHOD OF AUCTION, a one bedroom ground floor flat with communal parking, lounge, bathroom and fitted kitchen. CALL TO BOOK YOUR VIEWING ASAP!Energy Rating - DCouncil Tax Band - ATen...

































