Auction Properties For Sale in Dartford, Kent
4 Bedroom Semi-Detached Family Home – Chain Free Guide Price £525,000 - £550,000 Location: Claremont Road, Hextable Nestled in a sought-after and convenient location, this spacious and well-presented 4-bedroom semi-detached property offers a wond...
Auction Sale - 24/11/2025 - To book viewings, view the legal pack and register to bid please refer to the full sales particulars on the Savills Auctions website A three bedroom semi-detached house, benefitting from off road parking and a rear garden, in need of modernisation, well located f...
Auction Sale - 10/12/2025 - To book viewings, view the legal pack and register to bid please refer to the full sales particulars on the Savills Auctions website A three bedroom mid terrace house, benefitting from off road parking and a rear garden, in need of modernisation, well located for...
This 2 bedroom semi-detached bungalow in a semi-rural location in need of some modernisation, would make an ideal first time buy/investment or downsize property or family home. The property is being sold via a modern method of auction. Please call or visit YOPA Online Auctions for more information.
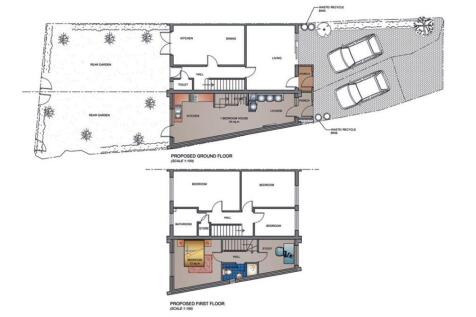
Auction date - 19/11/2025 & 20/11/2025. Ground Floor - Reception Room, Kitchen/Diner, Utility Room, WC, First Floor - Three Bedrooms, Bathroom , GIA extending to approximately 82.1 sq m (884 sq ft), Garden, Off Street Parking for Two Parking Spaces, Video Tour available below
Auction Sale - 10/12/2025 - To book viewings, view the legal pack and register to bid please refer to the full sales particulars on the Savills Auctions website A three bedroom semi-detached house, benefitting from off road parking and a rear garden, in need of modernisation, well located f...
Offered to the market chain free is this well-presented one bedroom apartment in Dartford. The accomodation compromises of a double bedroom, bathroom and open plan kitchen/living area. Ideally located near the Darenth Valley Hospital and walking distance to the local Fasttra...
Auction Sale - 24/11/2025 - To book viewings, view the legal pack and register to bid please refer to the full sales particulars on the Savills Auctions website A one bedroom third floor flat, benefitting from a private balcony, in need of modernisation, well located for the transport links...
Auction date - 19/11/2025 & 20/11/2025. Subject to an Assured Shorthold Tenancy, Fifth Floor - Reception Room/ Kitchen, Bedroom, Bathroom, Lease with approximately 989 years unexpired, GIA (Source: EPC) approximately 51 sq m (549 sq ft), Private Balcony and Parking Space, Dartford Overground ...
Auction Sale - 24/11/2025 - To book viewings, view the legal pack and register to bid please refer to the full sales particulars on the Savills Auctions website A two bedroom ground floor maisonette, benefitting from a private rear garden, in need of some modernisation, well located for Dar...






































































































