Buying Scheme Properties For Sale in Domgay, Llanymynech, Powys, Mid Wales
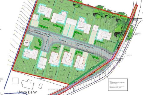
A well appointed new build bungalow on a small development of 9 properties in the village of Pont Robert. Stuck in a chain - we may be able help with part exchange or chain breaking. Please contact us for more details Open Day - SATURDAY 15th November and 29th November from 10am to 2PM...
A well appointed new build bungalow on a small development of 9 properties in the village of Pont Robert. The seller will pay the buyer's stamp duty on completion up to a maximum of £9,000, subject to the sale being agreed before 28/11/25 Approximate Completion date - November 20...
A well appointed new build bungalow on a small development of 9 properties in the village of Pont Robert. Approximate completion date - December 2025 SITE OPEN DAY - SATURDAY 15th November and 29th November from 10am to 2PM Please note that a charge of £36 per person w...
A well appointed new build bungalow on a small development of 9 properties in the village of Pont Robert. SITE OPEN DAY - SATURDAY 15th November and 29th November from 10am to 2PM Please note that a charge of £36 per person will be applied to cover mandatory anti-money laun...







