Properties For Sale in Filey, North Yorkshire
A well presented and extended semi-detached house offering three bedroomed accommodation located in a quiet cul-de-sac. The property has been thoroughly modernised by the current owners, benefiting from gas central heating, UPVC double glazing and modern dining kitchen and bathroom. Ou (cont.)
Welcome to Tranquility Court, a charming property located on The Bay Holiday Village, near the picturesque town of Filey. The Bay holiday village benefits from direct access to the beach and many on-site facilities including a beauty room, gym, tennis court, leisure complex, shop, and eateries. ...
Nestled in the heart of the picturesque seaside town of Filey, this spacious three-bedroom first-floor maisonette offers a wonderful blend of coastal charm and convenience. Ideally located just a short stroll from Filey's award-winning beach, this property benefits from easy access to an array of...
Hunters are pleased to bring to the market this well presented holiday home located at The Bay holiday village near Filey. The Bay holiday village has a wide range of benefits including direct access to the beach and many on-site facilities including a beauty room, gym, tennis court, leisure comp...
Hunters are delighted to bring to the market this well-presented three bedroom terraced property located on a corner plot within the award winning The Bay Holiday village near Filey. The Bay offers a wealth of amenities to its residents including a gym, leisure complex, tennis court, beauty room,...
A centrally located maisonette apartment arranged over the first and second floors, well situated for all the town centre amenities including shopping and beach access areas. This property offers three bedroomed accommodation and has the benefit of private parking, gas central heating and (cont.)
Ideal for holiday home or investment. Four bedroom terraced cottage. Located in the centre of Filey convenient for most amenities. Gas central heating via combination boiler. Upvc double glazing. Modern kitchen and bathroom. New roof (2021). Sold with no onward chain. EPC Rating: D.
A third floor apartment situated on Filey's Crescent Front, offering panoramic sea views over Filey Bay. The property offers two bedroomed accommodation and has the benefit of gas central heating, uPVC double glazing and parking on a first come first served basis to the rear of the buildi (cont.)
Hunters are pleased to bring to the market this beautifully presented holiday home located in a quiet area at The Bay Holiday Village near Filey. The Bay Holiday Village benefits from a wide range of facilities including a beauty room, gym, tennis court, shop, leisure complex and eateries whilst ...
Hunters are pleased to offer to the market this two bedroom detached lodge located in the award winning Bay Holiday village near Filey. The Bay offers a wealth of amenities to its residents including a gym, leisure complex, tennis court, beauty room, eateries, shop and direct access to the beach!...
For sale by Modern Method of Auction powered by Iamsold Ltd - Starting Bid £160,000 + Reservation Fee A double fronted detached bungalow style residence offering three bedroomed accommodations, having the benefit of night storage heating and UPVC double glazing. Features include a deck (cont.)
A terraced cottage residence situated in Filey's Town Centre, well situated for all amenities including the shopping and beach access areas. The property offers two bedroomed accommodation with useful loft roof and the benefit of UPVC double glazing and gas central heating. Other featu (cont.)
A spacious town centre apartment offerings four bedroomed accommodation with parking to the rear. Occupying the first and second floors and having the benefit of gas fired central heating, breakfast kitchen & bathroom and separate w.c. Well situated for all amenities including the shop (cont.)
Ideal holiday home / investment property available fully furnished. Located on a modern holiday village. Two bedroom terrace house. Gas central heating. Upvc double glazed windows. Small patio area. Off road parking. Communal gardens. No onward chain. EPC: C.
Hunters are pleased to present this well-maintained mid terrace bungalow, ideally positioned on West Vale, just off West Avenue in Filey. This sought-after location places you within easy walking distance of Filey town centre, the beach, bus and train stations, making it a convenient option for t...
Discover this delightful end-terrace home set on Sunrise Drive within The Bay, an award-winning coastal holiday village just outside the popular seaside town of Filey. The Bay offers direct access to the beach together with a fantastic range of on-site amenities including a gym, tennis court, lei...
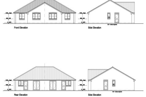
Colin Ellis Property Services are delighted to bring to the market this BUILDING PLOT in Filey. Positioned on Cawthorne Crescent the site had planning permission passed historically for the construction of two, TWO BEDROOM SEMI DETACHED BUNGALOWS. Rarely found on the market the site would suit a ...
Hunters are pleased to bring to the market this two bedroom end terrace house located on The Bay holiday resort, which has proved to be a successful holiday let. The Bay holiday village benefits from a wide range of facilities including a gym, beauty room, tennis court, shop, leisure complex and ...
A characterful terraced cottage located in a row of similar properties, just a short walk from Fileys town centre. The property is in need of modernisation but benefits from a kitchen/diner, private rear yard, uPVC double glazing and two bedroomed accommodation. Offered for sale with (cont.)




























