Terraced Houses For Sale in Hardwick Estate, Stockton-On-Tees, Cleveland
A fantastic modern built home in well presented condition and offering a chance to move in and enjoy from day one. Positioned in a pleasant cul-de-sac, The University of North Tees Hospital is close by as are local amenities such as Tesco, Lidl and there is a parade of shops off Hardwick Road....
This well-presented two-bedroom mid-terraced home is ideally situated within a modern estate in the popular Hardwick area of Stockton-On-Tees. Perfect for first-time buyers, professionals, or investors. Early viewing is highly recommended to fully appreciate this property.
Charming 3-bed mid-terraced house in Stockton with modern kitchen, sleek bathroom, spacious living room, and low-maintenance gardens. Ideal for families and professionals seeking convenience and contemporary charm. Close to North Tees Hospital and desirable amenities.
CHAIN FREE Sold as seen and in need of some updating Piper Knowle View is an excellent location situated close to North Tees Hospital. A fantastic purchase being an end terrace the property has come to the market with Smith & Friends Estate Agents with no forward chain and vacant possession. Comp...
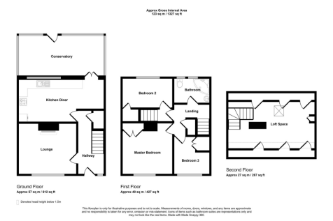
Chain Free and Beautifully Presented Three Bedroom Terrace Home on Scurfield Road, Hardwick, Stockton-on-Tees. Immaculately presented throughout, this modern three-bedroom terrace home on Scurfield Road, Hardwick offers stylish décor, spacious living, and excellent outdoor space — ideal f...
Charming 2-bedroom end of terrace house for sale. This well-maintained property offers a spacious and bright living space, with lovely gardens, residents parking, and outbuildings. Conveniently located with easy access to amenities & North Tees Hospital. Don't miss this inviting and clean home!
Good-sized 3-bedroom house available for sale. This spacious and inviting property boasts plenty of natural light and convenience being walking distance to North Tees Hospital. Features include a garden and off-street parking. Ideal for families or professionals seeking a comfortable home in a de...
*****No Forward Chain***** We are delighted to present this well-maintained two-bedroom end terrace home situated in a cul-de-sac location on Chilton Close, within reach of North Tees Hospital, local shops, schools and transport links. Ideal for first-time buyers, downsizers, or investors alik...
4 Wrekenton Close, Stockton on Tees, TS19 8RS We are acting in the sale of the above property and have received an offer of £80,000 on the above property. Any interested parties must submit any higher offers in writing to the selling agent before exchange of contracts takes place.
This property is for sale by the Modern Method of Auction which is not to be confused with traditional auction. The Modern Method of Auction is a flexible buyer friendly method of purchase. We do not require the purchaser to exchange contracts immediately, but grant 28 days to achieve exchange of...

































