Auction Properties For Sale in Heysham, Morecambe, Lancashire
Auction End Date: 28-04-2026 at 13:00, Exciting opportunity to acquire this spacious and well cared for, three double bedroom detached house, situated on the sought after residential estate of Heysham Park, within Heysham Village. Available with no chain delay This accommod...
AUCTION ENDS THURSDAY 7th MAY at 3pm Step into this beautifully presented three-bedroom semi-detached house, ideally situated in a quiet location near Heysham village. This delightful family home is fully double glazed and benefits from gas central heating throughout, ensuring comfort ...
Immediate 'exchange of contracts' available Being sold via 'Secure Sale' Superb 2 bed ground floor seafront apartment, Panoramic sea views across Morecambe Bay to the Lakeland Hills, uPVC d/glazed, gas c/heated, Bay fronted lounge diner, modern fitted kitchen & shower r...
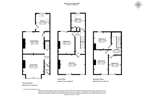
*For sale via secure sale online bidding: terms and conditions apply.* We are pleased to offer to auction this three one bedroom apartments set over three floors of accommodation along with lower ground floor cellar space. One apartment is currently rented at £400pcm and the other at &...





