Terraced Houses For Sale in Prenton, Wirral, Merseyside
Charming 3-bed terrace near Claughton Village, offered with no onward chain. Features spacious living areas, modern kitchen, and family bathroom. Convenient location close to local shops, schools, and transport links-ideal for first-time buyers or investors.
Brimming with character and nestled in the heart of a 12th-century village, this beautiful barn conversion offers a rare blend of rustic charm and spacious modern living. With original features including exposed beams, sandstone walls, deep slate window sills, latch-and-brace doors, and even a na...
A fabulous spacious five double bedroomed terraced house with a sunny, private back garden with patio area; a gorgeous and welcoming wood block floor entrance hall and with some really fab family accommodation both at ground and at first and second floor levels. There's a smart wood burn...
Zip-a-dee-doo-dah, zip-a-dee-ay My, oh, my, what a wonderful Home!!! This well-appointed family house offers plenty of living space, and is within close proximity to local schools, transport links & amenities. Boasting three bedrooms & set within a fantastic close, Viewings available now!!
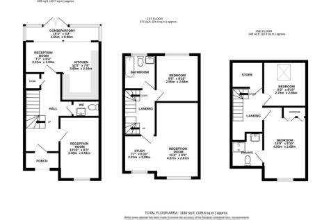
These town houses, located within Oxton, always prove hugely popular just as much for young families with BHSA school in mind, as for the retired. This particular town house has some identifiable features to take note of. Extended a little to the rear right-hand side of the property at g...
With a current rental income of £750 pcm; this is a three bedroomed, two bathroomed tenanted town house with a south facing rear garden. There are three reception rooms (one at first floor) as well as an open plan kitchen/diner and cloakroom. To be sold with tenant in situ. The property ...
Perfectly suited for first time buyers or growing families, this spacious and well maintained three bedroom end terraced property offers a fantastic opportunity to move straight in with no work required. Step inside to discover a home in great condition throughout, featuring, two gener...
''This property will blow the wind out of your sails!'' Positioned in a desirable area, you find this good-sized home, with a back garden that will take your breath away. Don't just take our word for it, call us today and see for yourself.... You will not be disappointed!!
No Chain! Charming three bedroom terraced house in a prime location close to amenities, transport and schools. Features a bright open-plan kitchen and dining area, spacious lounge, conservatory and low-maintenance garden. Ideal for first-time buyers or investors.
No ongoing chain! Sat on the ever sought-after Willowbank Road in Prenton is this substantial, three-bedroom, mid-terrace home. This house has many original features with large bay windows and high ceilings that give it an abundance of light throughout. This house offers many possibilities to mak...
Perfectly positioned on the ever-popular Fairview Road leading up to Oxton, this deceptively spacious two bedroom end-terrace home is bursting with potential. Ideally located close to excellent schools, Oxton Village, and superb transport links, this property is not one to be missed!





















































































































































































