1 Bedroom Flats For Sale in Thetford, Norfolk
**READY TO MOVE INTO** FINAL REMAINING 1 BEDROOM APARTMENT ON THE DEVELOPMENT. The Meadow is a FIRST FLOOR APARTMENT that offers OPEN PLAN LIVING with an, a double sized bedroom with a FITTED WARDROBE and a bathroom. There is DEDICATED PARKING.
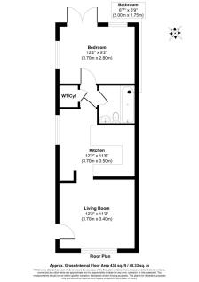
If you are searching for a first time buy or 'turn key' property, then this may be the one for you. Immaculately presented, this one bedroom, ground floor apartment was built by Hopkins Homes in 2023. The accommodation on offer is larger than expected and is bright and spacious. The open plan k...
**READY TO MOVE INTO** FINAL REMAINING 1 BEDROOM APARTMENT ON THE DEVELOPMENT. The Meadow is a FIRST FLOOR APARTMENT that offers OPEN PLAN LIVING with an, a double sized bedroom with a FITTED WARDROBE and a bathroom. There is DEDICATED PARKING.
SUMMARY This ground floor apartment is located within a purpose-built development for the over 60s and offers comfortable, easy-access living. The accommodation comprises a spacious double bedroom with fitted mirrored wardrobes, a well-equipped kitchen with integrated appliances, a generou...

















