Auction Properties For Sale in Walthamstow, East London
For sale via secure sale online bidding - terms and conditions apply. Nestled in the vibrant area of Blackhorse Lane, London, this remarkable investment opportunity comprises five separate flats, each offering a unique charm and character. Currently, these flats are generating an impressive a...
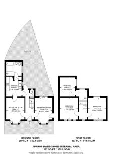
Welcome to this beautifully presented four-bedroom family home, located on the ever-popular Hartington Road in the heart of Walthamstow. Boasting over 1,140 sq. ft of internal space, this charming Victorian terrace blends period character with stylish modern touches, the ideal combination for con...
Welcome to this beautifully presented three-storey home, perfectly blending character with modern living. Set across three spacious levels, this property offers a versatile layout ideal for families or professionals seeking style and comfort. The ground floor features a welcoming entranc...
**For Sale By Online Auction To inspect the legal documents for this property go to our website to download the legal pack** A Portfolio of 3 x Ground Floor Studio Flats Part Let Producing a Combined Income of £28,200 Per Annum Leasehold. Each flat is hel...
For sale by Online Auction - THREE BED END TERRACE TO BE SOLD AT AUCTION A GREAT OPPORTUNITY TO SECURE A READY TO MOVE-IN PERIOD PROPERTY WITH A SECURE AUCTION PURCHASE This larger-than-average end-of-terrace Victorian home offers over 1,270 sq. ft. of living space, making it an ideal c...
Charming Victorian home on Black Horse Lane. Two receptions, kitchen, bathroom, conservatory, and two bedrooms. Just a short walk to Black Horse Road tube. The property is being sold via a modern method of auction. Please call or visit YOPA Online Auctions for more information.
REF: PB0448 For Sale by the Modern Method of Auction. A Rare Investment Opportunity in the Heart of Walthamstow This three-bedroom terraced house on popular Parkstone Road is being offered to the market for the first time in 50 years and presents outstanding potential for full re...
Spacious double bedroom apartment with private balcony and communal gardens situated in a fantastic Wood Street location being sold on a chain free basis. Throughout this property offers an abundance of natural lighting and ample living space for you to make your own. As you enter, yo...
Buyers Fees apply - see brochure for details. Located on the highly desirable Victoria Road, this beautifully presented period conversion offers a unique blend of character and contemporary comfort in the vibrant heart of Walthamstow Central. Set within a classic Victorian property, this charming...
For sale on 29 October 2025 Our national property auction will be broadcast online with live auctioneers. To bid by proxy, online, or by phone, please submit your registration form no later than 5pm the day before the auction. The auction will commence at 09:00.
Unsold. Contact the auctioneer. **For Sale By Public Auction 16th October 2025 09:30 AM To inspect the legal documents for this property go to our website to download the legal pack** A Second Floor Studio Flat Leasehold. The property is held on a 99 year lease...

















































