Properties For Sale in West Kensington, West London
The penthouses were built over an existing and highly sought-after mansion block near Barons Court and have been constructed with an emphasis on quality. This penthouse boasts generous living space as well as external areas and secure off-street parking for one car.
A laterally arranged & well presented three bedroom penthouse apartment situated in the heart of West Kensington. The property offers ample accommodation space by way of three well-portioned bedrooms & two bathrooms (one en-suite). Furthermore, there is direct access onto the private balc...
This stunning two bedroom, two bathroom flat offers modern living at its finest, boasting its own private front door an exclusive terrace and secure bike storage. Impeccably maintained, the home features a bright, open-plan living area with sleek finishes, a contemporary kitchen with high-end app...
A fantastic opportunity to purchase this two bedroom flat in a secure, gated development in Brook Green. This flat has a large, spacious reception room, two bathrooms and the chance to add your own stamp. The development benefits from a 24hr concierge, security on the entrance gates and has lift ...
STAMP DUTY CONTRIBUTION AVAILABLE* This stunning brand new luxury 762 sq ft two bedroom, two bathroom fifth floor apartment, with the advantage of a large private terrace, set in the The Grove W6 a boutique collection of one, two and four bedroom apartments and 2 luxury houses in the v...
Situated in a popular red brick mansion development, this four bedroom, two bathroom apartment offers fantastic space and value for money. This property has over 1100 sq/ft of space, is in good condition throughout, has a share of freehold and no onward chain.
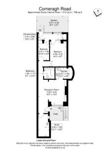
A fabulous, lateral 2 double bedroom flat which occupies the entire lower ground floor of a handsome stucco-fronted Victorian property with excellent living/entertaining space and a decked and walled garden. The open plan reception/kitchen/breakfast room is to the front of the property and has a ...
STAMP DUTY CONTRIBUTION AVAILABLE* This stunning brand new luxury 743 sq ft two bedroom, two bathroom first floor apartment, with the advantage of two private terraces, set in the The Grove W6 a boutique collection of one, two and four bedroom apartments and 2 luxury houses in the vibr...
A spacious three-bedroom apartment offering just over 1000 sq.ft of well arranged living space. Positioned on the second floor, the property comprises a bright and open-plan kitchen/dining/reception room, three generously sized bedrooms, and two modern bathrooms, including an en-suite.
This lovely two bedroom flat has been extended to the rear, creating a bright, light and open-plan modern kitchen with integrated units, a living room with bi-folding doors leading out onto a private south facing garden, a separate WC as well as modern fitted bathroom suite.
A Modern and sleek 1 bed apartment at Benson House, 375 Kensington High Street. Featuring a spacious layout with premium finishes throughout, offering a luxurious living experience. Enjoy access to amenities like a gym, lap pool, sauna, and private cinema in prime Kensington.
A stylish contemporary two bedroom, two-bathroom garden flat arranged over 799 square feet. Well-proportioned and well-spaced out, this property exudes modern style finished to a high specification throughout, an exceptional entertaining space leading onto a large spacious garden by way of bi-fol...
A highly individual 2 double bedroom lateral apartment occupying the lower ground floor of an imposing Victorian building with very good living/entertaining space and a generous garden. The open plan reception/kitchen/breakfast room is wonderfully bright with a large skylight and full-wi...
A luxury second floor one bedroom apartment, in the much sought after 375 Kensington High Street development. Property comprises large open plan kitchen and living room, double bedroom with fitted storage and a good sized bathroom with utility cupboard. Other benefits include wood floors and com...






















































































































