Auction Properties For Sale in West London
GUIDE PRICE (AUCTION) This impressive maisonette is spread across two storeys and is incredibly well sized with over 1500sq ft of living space. Further benefiting from a private patio garden, a share of freehold and, if more size is needed, potential to extend into the loft STPP. Auction Details...
Auction Sale - 16/09/2025 - To book viewings, view the legal pack and register to bid please refer to the full sales particulars on the Savills Auctions website Well located for Queens Club and the shopping facilities of High Street Kensington - A four bedroom split level self contained fla...
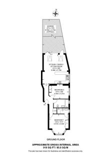
Auction Sale - 24/11/2025 - To book viewings, view the legal pack and register to bid please refer to the full sales particulars on the Savills Auctions website Of interest to Developers, Investors and Occupiers.A three bedroom terraced house, in need of modernisation and with develo...
This property is for sale by the Modern Method of Auction. Located within the popular 'Bury Triangle' of South Fulham, this apartment is much larger than the usual apartments and unusually owns the entire garden to the rear. It comprises of a beautifully finished raised grou...
Auction Sale - 24/11/2025 - To book viewings, view the legal pack and register to bid please refer to the full sales particulars on the Savills Auctions website Of interest to owner occupiers.A four bedroom terraced house, presented in clean decorative order, with potential to extend...











