to
to
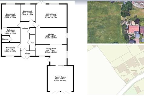
Area

Price
-

Bedrooms
-

Bathrooms
-

Property type

Property details

Tenure types

Must haves

Don’t show

2 results

Properties For Sale in RH6 0AY

2 results

Map
Page
of 1
See properties to rent in RH6 0AY

Get ready with a Mortgage in Principle

Hero ImageImage of a drawing of a house and an abacus representing a step to get a Mortgage in Principle
  • Personalised result in just 20 minutes
  • Find out how much you can borrow
  • Get viewings faster with agents
  • No impact on your credit score

Staying secure when looking for a property

Ensure you're up to date with our latest advice on how to avoid fraud or scams when looking for property online.

View our security centre to find out more >

Map data ©️OpenStreetMap contributors.