Properties For Sale in SW11 3RF
Exceptional duplex apartment set within a striking residential development on the Battersea riverside, this spacious 3 bedroom apartment offers contemporary living space with great views. It benefits from a large open plan kitchen / reception and dining area, three double bedrooms and two bathroo...
Spacious 1-Bedroom Apartment with Airconditioning & 2-Bedroom Potential – Falcon Wharf, SW11 This exceptional 820+ sq ft one-bedroom apartment, designed by renowned architect James Burland, is set within the sought-after Falcon Wharf development, moments from the River Thames. The property boas...
Bright & Spacious 1-Bed Apartment | Falcon Wharf, Battersea with airconditioning Located on the 6th floor of the modern Falcon Wharf development, this generously sized one-bedroom apartment offers over 800 sq ft of stylish living space in a prime riverside location. The flat enjoys excellent..
Located on the sixth floor of this popular riverside development is this modern and generously proportioned one bedroom property. The accommodation comprises a large double bedroom which benefits from built-in wardrobes, a sleek modern bathroom and a fully fitted modern kitchen that seamlessly..
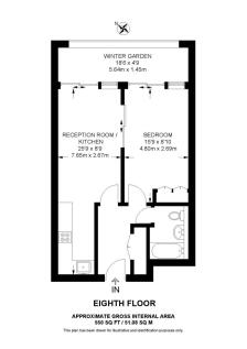
An impressive one double bedroom lateral apartment situated within the sought-after Falcon Wharf development. Comprising an open plan reception/kitchen/dining room, family bathroom, winter balcony and ample storage. The property benefits further from a concierge, has parking available to rent vi...
























