Properties For Sale by Miles & Son, Swanage, including sold STC
82 results
* SPACIOUS DETACHED HOUSE with DOUBLE GARAGE & PARKING * Sought after residential cul-de-sac North of Swanage. 3/4 bedrooms, 1/2 reception rooms, kitchen/diner, 2 bath/shower rooms (1 en-suite), GF W.C., utility room, gas central heating, double glazing, easily maintained gardens, some hill views
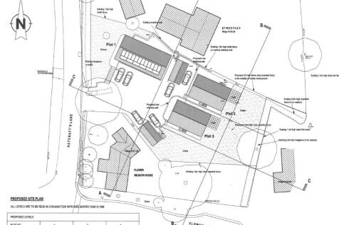
* WORTH MATRAVERS - RENOVATE or REDEVELOPMENT POTENTIAL * Approx. 0.25 ACRE PLOT with SOUTHERLY REAR ASPECT. 5 bedrooms, 4 bath/shower rooms (1 en-suite), 2 reception rooms, kitchen, utility room, loft rooms, gardens, garage and ample off road parking. Some SEA AND RURAL VIEWS. Vendors suited!
* DETACHED HOUSE - SOUGHT AFTER RESIDENTIAL LOCATION with SEA AND HILL VIEWS! * 3 bedrooms, through lounge and dining room, kitchen, utility room, bath/shower room, 2 separate W.C.'s, gas central heating, double glazing, WEST FACING REAR GARDEN, front garden, driveway, GARAGE. NO FORWARD CHAIN!


























































































































































































































































































