Properties For Sale by Stags, Kingsbridge, including sold STC
47 results
A superb country house in the hamlet of Hown, set at the head of its 13.5 acres with stunning southerly views across its own land towards the River Avon. Unlisted and arranged over three floors, it provides almost 3,500 sq ft of accommodation, a superb quadruple garage with a studio above, an add...
An incredibly rare opportunity to modernise a pair of cottages which have been in the same family for almost 100yrs. This project offers immense potential, in one of the most breath taking waterside locations alongside a creek of the Salcombe estuary. Freehold. Council Tax Band B & B. EPC...
A detached, period cottage that boasts much charm and character with a contemporary edge, that is set within the heart of the village just a mile from the beach. With superbly presented accommodation including a fabulous kitchen diner, sitting room, utility room, three-bedrooms, a family bathroo...
An attractive, part tile hung, detached, spacious, stone barn set in a rural location, close to the town with far-reaching views across beautiful countryside towards the estuary and Salcombe. Flexible accommodation over three floors including three reception room, four double bedrooms. Good-siz...
ONE FULLY CONVERTED BARN AND TWO BARNS TO CONVERT. A superb opportunity to purchase a fabulous, spacious, beautifully converted barn, with three bedrooms, generous living and lots of character with two partly converted barns attached set within a good plot plot with open garage, parking, gardens...
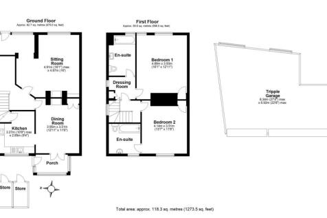
A fabulous detached home, with attached annexe, well-suited for multi-generational living or combined as a super generously sized family home that is located in the heart of the highly desired village of South Milton, close to the beach. Freehold. Council Tax Band E & A. EPC: Band E.
A charming double fronted Victorian Terraced property enjoying fabulous views over the Ley, surrounding countryside and out to sea at Torcross. The spacious accommodation includes 4 double bedrooms, 2 reception rooms, study and a delightful kitchen diner. Freehold. Council Tax Band E. EPC: B...
A spacious detached property of over 2,500 sq ft in a very large plot of almost 0.5 acres. The current accommodation is incredibly flexible with four bedrooms, four reception rooms and two bathrooms and can easily be divided into a house with an annexe. In addition the property has sign...
A substantial, detached property set within a generous plot approaching half an acre, with detached workshop, double and single garage, and ample parking. The property is located on the edge of the village and enjoys fabulous views over the surrounding South Hams countryside.. The property now ...
A 3 bedroom bungalow in a prime position in Stokenham with far reaching coastal views, large open-plan reception with bifold doors to the garden, single garage and private drive with space for 4 cars, detached timber artist’s studio with power and insulation. EPC Band C.
A detached, beach-side property with full planning to re-develop into a fabulous modern, contemporary dwelling, currently with two double bedrooms, (one with en-suite) and family bathroom with spectacular unobstructed sea views. Separate triple garage. Freehold. Council Tax Band C. EPC Band E.
An exciting opportunity to purchase a beachfront property in a secluded location in the highly sought after village of Beesands. The house has a superb kitchen and separate sitting room with two double bedrooms on the first floor and two additional loft rooms on the second floor. The large gard...
Internal viewing is highly recommended to fully appreciate all that this fine, attached barn conversion has to offer. This beautiful property is superbly presented and finished and has a plethora of character, boasting spacious and flexible accommodation including a stunning vaulted sitting roo...
A detached, beach-side property with full planning to re-develop into a fabulous modern, contemporary dwelling, currently with two double bedrooms, (one with en-suite) and family bathroom with spectacular unobstructed sea views. Separate detached triple garage available by separate negotiation. ...
A chain free light and spacious link-detached bungalow with huge potential to modernise in a quiet cul-de-sac within the popular village of Frogmore. Off-road parking, a single garage and a pleasant garden. The Kingsbridge estuary and South Devon beaches are readily accessible. Freehold. Counci...


































































































































































































































































































