Properties For Sale by Sunderlands, Hereford, including sold STC
137 results
Tuck Mill Barn Tuck Mill Lane Marstow HR9 6EH Summary of features: Barn with planning consent for a substantial 4-bedroom dwelling Chalet with planning consent for a replacement 2-bedroom dwelling Set in approximately 17.56 acres Pasture land and woodland Conve...
The 286.32 Acre Grade II & III Pasture & Arable Farm with Two Houses, a large range of Modern Farm Buildings, an Earth Walled Silage Pit & some Traditional Buildings to the rear of the houses. Comprising a Stone, 4 Bedroomed Farmhouse with the adjoining converted Former Hop Kiln, “The Ro...
An excellent opportunity to acquire a well-located and versatile north Herefordshire farm extending to approximately 213.82 acres of productive arable land and mixed woodland. The arable land is capable of supporting a wide range of cereal and root cropping. The farm is well suited t...
Birchley Barn Farm offers a unique and exciting opportunity to acquire a predominantly arable farm near Tenbury Wells. The ring fenced farm comprises of a substantial detached three bedroomed barn conversion, a three bedroomed detached cottage, farm building and land in total extending to around ...
Birchley Barn Farm offers a unique and exciting opportunity to acquire a predominantly arable farm near Tenbury Wells. The ring fenced farm comprises of a substantial detached three bedroomed barn conversion, a three bedroomed detached cottage, farm building and land in total extending to around ...
Birchley Barn Farm offers a unique and exciting opportunity to acquire a predominantly arable farm near Tenbury Wells. The ring fenced farm comprises of a substantial detached three bedroomed barn conversion, farm buildings and land in total extending to around 178.22 acres. The land is primarily...
***UNDER OFFER*** Travelodge, Grafton Inn and Land at Grafton, Hereford, HR2 8ED •38-Bedroom Travelodge hotel producing current annual income of £166,476.65 per annum • RPI indexed rent review in 2028 • Substantial detached vacant former public house premises known a...
This exceptional block of land offers a rare opportunity to acquire approximately 98.40 acres of Grade 2 & Grade 3 arable and pastureland. The land is of a consistent topography, with well-defined boundaries and direct access from an adjoining council-maintained road. The ringfenced block of prod...
Woonton Farm Woonton Herefordshire HR3 6QL Summary of features: Substantial six bedroomed Grade II Listed farmhouse Range of traditional farm buildings offering development potential subject to planning permission Situated in the rural village of Woonton Available as either farm...
Nestled on the outskirts of the charming village of Little Dewchurch, Hereford, this stunning detached house offers a perfect blend of modern living and rural charm. With five spacious bedrooms and three well-appointed bathrooms, this property is ideal for families seeking comfort and style. The ...
Oak Wood is a beautifully restored five-bedroom barn conversion that blends traditional character with modern living. Set within 5.41 acres of land, the property features spacious interiors, high-quality finishes, and charming architectural details like exposed beams and vaulted ceilings. The adj...
A substantial former Grade II listed 17th Century rectory which has been re-modelled and extended over a number of periods. This interesting, detached property, which is constructed of old sandstone, retains a wealth of character and charm but is now in need of renovation work to restore it to i...
A beautifully presented four-bedroom country home set in approximately 45.74 acres of scenic North West Herefordshire countryside, on the edge of the village of Lingen. The Paddocks offers a peaceful rural lifestyle with easy access to nearby towns including Presteigne, Knighton, Ludlow, and Here...
The Homestead presents a rare and exciting opportunity to acquire a charming farm on the outskirts of the picturesque village of Flyford Flavell. The property comprises a three-bedroom detached bungalow, a separate barn positioned along the northern boundary, a collection of timber outbuildings, ...
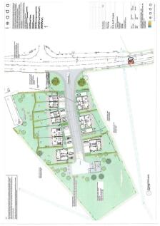
The site is presently agricultural land with planning consent for 24 residential units consisting of 16 open market units and 8 affordable housing units. The 16 open market units will comprise of six 2-bedroom houses, eight 3-bedroom houses and two 4-bedroom houses. The affordable house...
The development site is a former agricultural farmstead set in open countryside. Full planning permission for four barn conversions and four new dwellings. Two four bed plots. two large three Bed semi Plots, about 1000 sq.m of barn conversion space, Farmhouse needing renovation also available sep...
An impressive, detached stone barn offering individual accommodation, set in this lovely shallow valley in rural south Herefordshire. Accessed off a quiet country lane, this interesting property was converted about fifteen years ago to a high standard with oak doors, exposed beams, under floor oi...
Brandon Villa is a former coach depot with site comprising a detached residence probably constructed in the 1960’s together with a block built workshop and a mostly hard surfaced yard. The residential property is in good condition although of course it has to be demolished as part of the scheme.<...
Pomona Farmhouse is a beautifully appointed country residence set within over four acres of idyllic grounds, featuring mature orchards, a private tennis court, and a tranquil lake. Arranged over three storeys, the property offers a spacious farmhouse kitchen-diner, two elegant reception rooms, an...
A beautiful five-bedroom country home set in 8.62 acres of land, featuring a traditional stone farmhouse with accommodation over three floors. The property is accessed via a private drive, with generous parking, lawn and garden areas. The adjoining pasture land is suited to a range of uses, inclu...
An impressively extended and generously proportioned 5-bedroom detached residence located in one of the most desirable areas of North Herefordshire. Situated in Lower Breinton, Poole Hill enjoys a stunning elevated setting, offering panoramic rural views and a peaceful location away from main roa...
Nestled on the outskirts of the charming area of Longtown, Hereford, this characterful house with an annexe presents a unique opportunity for those seeking a spacious family home or a potential investment. Boasting three well-proportioned bedrooms and two bathrooms, the main residence offers ampl...





















