Properties For Sale by Tinsley & Co, Brentwood, including sold STC
17 results
*Click virtual tour for material information pack* Finished to an outstanding standard throughout, this stunning two bedroomed second floor apartment with over 1100 sq-ft of space offers beautiful uninterrupted views over the river Thames via its two balconies. Situated within this modern ap...
*Click virtual tour for material information pack* Finished to an outstanding standard throughout, this stunning two bedroomed second floor apartment with over 1100 sq-ft of space offers beautiful uninterrupted views over the river Thames via its two balconies. Situated within this modern ap...
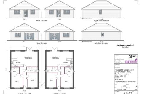
Tinsley & Co through our Land and New Homes Department are pleased to offer this excellent development opportunity occupying a 65' width plot of 0.31 acre situated in a popular turning in Stanford-le-Hope. Thurrock Council have granted permission ref 24/01250/FUL for the existing bungalow to ...
This rare to market, four bedroom family home is situated in the highly desired Lee Chapel South area and offers over 1600 sq ft of floor space. The property benefits from a ground floor extension and features a living room 26'8 in length, L shaped kitchen/diner measuring 20'7 x 17'10 max, utilit...
Price Range - £450,000 - £475,000. Located within a short walk of Billericay High Street and Mainline Railway Station is this well presented two bedroom semi-detached bungalow that offers a contemporary feel with further potential to enlarge an existing footprint of 729 sq ft. Th...
This well maintained three bedroom semi-detached house is situated in the heart of Langdon Hills off of Berry Lane within catchment of Lincewood Primary School, Langdon Hills Nature Reserve and Laindon Railway Station. The property offers an entrance porch with cloakroom leading to a bright, open...
No Chain - Price Range £425,000 to £440,000. Situated in the popular area of Great Baddow is this stunning three bedroom home that has been sympathetically restored and modernised to a very high standard. The ground floor accommodation comprises of two reception rooms both with a...
An excellent opportunity has arisen to purchase this competitively priced, three bedroom semi-detached home that would benefit from a degree of redecoration. The property features a full width kitchen extension measuring 15'5 x 9'4 with an adjacent cloakroom. The ground floor also benefits f...
*See virtual tour for Material Information Pack* This spacious three bedroom detached bungalow offers accommodation in excess of 1100 sq ft and is conveniently located for shops, local bus routes and transport links into London Fenchurch Street. The property comprises of a spacious living ro...
*Click virtual tour for material information pack* Situated within the exclusive Galleries Development, this ground floor apartment presents an exceptional opportunity to live in a mix of traditional and contemporary living. The apartment benefits from its own front door within secure wroug...
This imposing three-bedroom semi-detached home is situated within close proximity of Whitmore Way and offers easy access to Basildon Railway Station with links direct into London Fenchurch Street. Being built on a corner plot, the property offers generous off street parking for multiple vehicles....
Available with NO ONWARD CHAIN is this family sized three bedroom terraced house situated in the very popular Fryerns area of Basildon. Internally there is huge scope to update and create your own style. There is a lounge/diner measuring approximately 19'4 x 13'9, kitchen 16'9 in length, con...
*See virtual tour for Material Information Pack* This three bedroom property has been in the same family ownership for over 50 years and is offered for sale with no onward chain. The property is in need of modernisation and would provide an excellent investment opportunity. Positioned i...
NO ONWARD CHAIN. - This competitively priced, three double bedroom terrace house offers the potential to be a great family home. The property offers a deceptively spacious interior, requiring a level of modernisation. In our opinion this house would provide a great investment purchase or suit a g...
*See virtual tour for Material Information Pack* This superb second floor apartment is situated in the ever popular Forest Glade area of Langdon Hills and is within easy access to the Nature Reserve and a healthy walk to Laindon Railway Station offering great links into London Fenchurch Stre...
An excellent opportunity has arisen to purchase this bright and modern two bedroom apartment offering a high specification, luxurious living space. The apartment has been well maintained since being built in 2016 and boasts a spacious layout, making it the perfect home for young professionals. En...
Brimsdown Apartments comprise of 27 retirement apartments and offer comfort and security to over 65 year olds who are looking for independent living at the same time of having 24 hour security in addition to four separate communal areas as well as an immaculately maintained central courtyard area...
NEW LEASE IN EXCESS OF 170 YEARS - Offered with no onward chain to help facilitate a swift and hassle free move is this two bedroom first floor flat. Set in this no through road and fronted by a woodland area, you will find that all local amenities, including, shops, schools, doctors and supermar...
























































































































































































































































