Properties For Sale by Valley Homes, Coulsdon, including sold STC
12 results
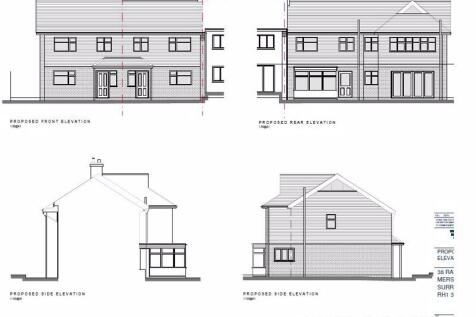
'FANTASTIC BUILDING OPPORTUNITY' 'Planning permission has been approved to build an additional 4 bedroom end of terrace house to the side of the existing property. We are very pleased to offer for sale an 3 bedroom family home with a large plot to the side which has full planning permission to b...
'FANTASTIC BUILDING OPPORTUNITY' 'Planning permission has been approved to build an additional 4 bedroom end of terrace house to the side of the existing property. We are very pleased to offer for sale an 3 bedroom family home with a large plot to the side which has full planning permission to bu...
Beautifully presented and extended three-bedroom family home located on a popular residential road in the heart of Coulsdon. The property features a stunning open-plan kitchen, dining and family room, private driveway parking, generous rear garden and excellent potential for a future loft convers...
TWO BEDROOM SEMI DETACHED HOME OFFERED WITH VACANT POSSESION: The property is situated at the end of a no through road within walking distance of South Croydon & Sanderstead Stations. Offered for sale in good order throughout and benefiting from: Good size lounge/diner, fitted kitchen, 2 d...
AN EXTREMELY GOOD SIZED, INDIVIDUAL PROPERTY IN NEED OF SOME UPDATING IS SITUATED WITHIN WALKING DISTANCE OF SOUTH CROYDON SHOPS AND STATION. This highly spacious and very Individual 2 bedroom linked detached property provides an ideal first home or could suit an elderly purchaser looking to be ...
A stunning apartment finished to a high spec and benefitting from no onward chain. Accessed via a security entry phone the property comprises an entrance hallway with storage, an impressive open plan living room and kitchen with access to a private balcony and a white high gloss finished kitche...
INVESTMENT PURCHASER REQUIRED for this superb character conversion flat located on the top floor of this impressive double fronted residence which is located just a short walk from Warlingham Village. The property is fully double glazed, has gas central heating, many character features, an all...
A delightful purpose built ground floor apartment set within a private tree lined cul de sac and close to Chipstead Station, bus routes and a parade of local shops are also within walking distance. The property has an entrance hall with storage, a bright triple aspect lounge/diner with double do...
A fabulous top (second) floor studio apartment set on a private development and benefitting from a private balcony. This apartment offers generous accommodation comparable to a one bed with the studio room being an impressive 21 foot by 19 foot with double doors to the balcony and incorporating...
A GOOD SIZED GROUND FLOOR STUDIO FLAT IS LOCATED IN A CUL DE SAC SETTING. This ground floor purpose built studio located in a popular residential area is within close proximity of Purley Town Centre which provides a good range of shops and transport facilities available including Purley's main l...
CASH BUYERS ONLY. ONE BEDROOM FLAT IN NEED OF MODERNISATION: This one bedroom ground floor conversion flat is being offered to cash buyers only. The property is in need of refurbishment throughout, however offers many of the original including fireplaces and wood panelling. The accommodation c...
**CASH BUYERS ONLY **A GOOD SIZED FIRST FLOOR STUDIO CONVERSION PROVIDES IDEAL INVESTMENT OPPORTUNITY. This large open plan studio has been freshly decorated but does need further improvements . The property is located within a short stroll of Coulsdon Town Centre shops and a choice of two rail...