Properties For Sale by haart, Hucknall, including sold STC
134 results
GUIDE PRICE £625,000 - £675,000 NO CHAIN! This beautifully presented four-bedroom family bungalow, set against the backdrop of Titchfield Park. Boasting extensive mature gardens, a re-fitted kitchen diner, this property presents a perfect blend of modern living and charming character
Guide price £550,000 - £600,000 Nestled at the end of its own private gated driveway, Bishops Way presents a rare opportunity to acquire a substantial five double bedroom detached residence offering style, space, and seclusion in one of Hucknall’s most sought-after locations
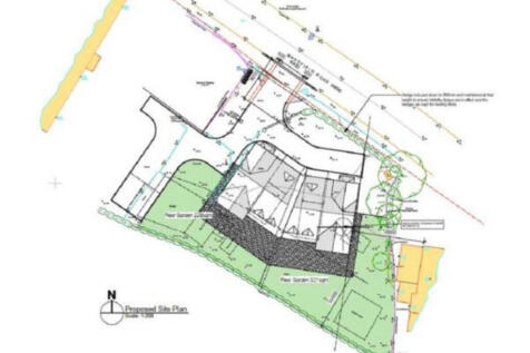
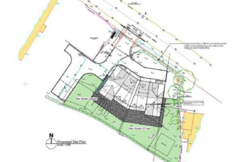
LOCATION! VIEWS! POTENTIAL! Yes this delightful cottage has it all! A charming and characterful cottage, with views, in a village location, but with the added benefit of land, that has planning permission for two detached dwellings, this is quite possibly the house that dreams are made of!
This beautifully extended four-bedroom detached family home offers spacious, modern living in the highly sought-after Osprey Grove. Perfectly designed for contemporary family life, the property boasts an impressive open-plan kitchen and family room, creating a bright and inviting heart to the home
A superb and individual, five bedroomed detached cottage situated in a very quiet location yet just a stones throw away from Eastwood town centre, giving you the benefits of a quite life in what feels like a secluded location but with the all of the convenience of a bustling town


























































































































































































































































































































































































































































































































































































