Houses To Rent in Chartham, Canterbury, Kent
*CHARTHAM VILLAGE LOCATION* Miles & Barr are delighted to bring to the rental market this well presented two bedroom cottage located in Chartham village, just a short walk to local supermarket, Chartham Primary School and local bus links. Canterbury city centre is just a 10-15 min...
*CHARTHAM VILLAGE LOCATION* Miles & Barr are delighted to bring to the rental market this well presented two bedroom cottage located in Chartham village, just a short walk to local supermarket, Chartham Primary School and local bus links. Canterbury city centre is just a 10-15 min...
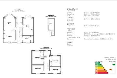
The Good Estate Agent is proud to offer to the market this unfurnished modern and well presented 3 bedroom detached house To the Ground Floor there is a downstairs WC, Lounge, Kitchen and Dining Room. To the First Floor there are 2 Double Bedrooms and a Single Bedroom, currently used as a S...






