Terraced Houses To Rent in Fisherwick, Lichfield, Staffordshire
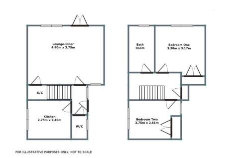
John Shepherd are pleased to bring to the market this well presented 2 bedroom end of terraced modern property with 2 bathrooms. Popular location within easy access to the heart of Lichfield city centre. Available towards the end of November. Deposit = £1326.92.
** Zero Deposit Guarantee Available ** An immaculately finished property, situated in a prime spot of Lichfield. Terraced house with rear courtyard. Walking distance to local amenities in City Centre and local transport links. Available early December.
Jayman lettings and management are pleased to present this three bed terraced property on Waverley Walk. This is a spacious property with two reception rooms, good-sized kitchen, guest WC, two double bedrooms, one single bedroom and a main bathroom. The property has ample of storage and a private...











































