Properties To Rent in Hackney (London Borough)
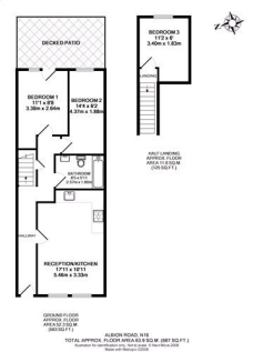
A bright and spacious split-level garden flat with two bedrooms and a study, ideally located on Albion Road, N16 in the heart of Stoke Newington. Beautifully arranged over the ground and half-landing levels, this stylish home offers well-proportioned rooms and wood flooring throughout.
This stylishly appointed two-bedroom home offers a bright and airy reception space with a contemporary open-plan kitchen, perfect for modern living. Both bedrooms are generously sized, with the principal room offering a tranquil retreat. This property also benefits from a private outside roof ter...
A three double bedroom top floor flat enviably located on Stoke Newington Church Street directly opposite Clissold Park. The property is offered in excellent decorative order throughout, comprising separate kitchen and living room area, private balcony, three double bedrooms, separate b...
Elms Estates are delighted to be able to offer this Luxurious Two Bedroom Apartment located within the the ever-so-popular riverside development, Matchmakers Wharf. Sky Apartments is accessed via a secure entry system managed by a 24-hour concierge. Positioned on the thirteenth floor, th...
***6 MONTH RENTAL!*** Dexters are very pleased to bring this stunning, fully furnished, two double bedroom flat to the market for rent on a short term basis! The property is of a very high spec throughout, has a good sized open plan lounge/kitchen, two double bedrooms, clean and bright bathroom s...
Situated on the 3rd floor of this well appointed, gated development is this spacious 3 bedroom apartment filled with natural light throughout. Hacon Square also benefits from a concierge and on-site gym. Comprising 3 double bedrooms with one en suite, a family bathroom, and a generous, south faci...





















































































































