to
to
Area
Price
-
Bedrooms
-
Bathrooms
-
Property type
Furnished type
Type of let
Property details
Available from
Must haves
Don’t show
Properties To Rent in Low Waters, Hamilton, Lanarkshire
Prioritise properties with...
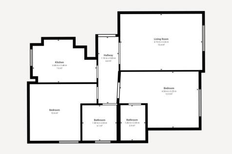
Lamb Street, Hamilton, South Lanarkshire, ML3
Maisonette
3
2
LRN 502521/380/07072 • EPC D • NO HMO • UNFURNISHED • NO PARKING • Recently renovated and in pristine condition • Three spacious double bedrooms with wardrobes • Warm reception room • Open-plan kitchen with modern appliances • Two newly refurbished bat...
4 Cadzow St, Flat 2/1, Hamilton
Apartment
2
1
Hello, are you looking to let a stunning, newly re-furbished two bedroom, upper flat in the heart of Hamilton town centre? Would you like to live in a historical building with period features? What about having shops and restaurants right on your doorstep, as well as being a short str (cont.)
Page of 1






































