Properties To Rent in RG45
NEWLEY REFURBISHED THROUGHOUT - THREE FLOOR MAISONETTE - AVAILABLE NOW - UNFURNISHED. This beautifully presented maisonette is located in the heart of Crowthorne village and is close to amenities. This property comprises two spacious double bedrooms, a bright living room...
NEWLEY REFURBISHED THROUGHOUT - THREE FLOOR MAISONETTE - AVAILABLE NOW - UNFURNISHED. This beautifully presented maisonette is located in the heart of Crowthorne village and is close to amenities. This property comprises two spacious double bedrooms, a bright living room...
A one-bedroom apartment available to rent on the popular Bucklers Park development in Crowthorne. The property offers a large double bedroom, luxury kitchen with appliances, also fitted with stylish, German engineered Nobilia units and have integrated Bosch appliances. There is a modern bathroom ...
Available immediately this ground floor apartment is situated on the much sought after Edgcumbe Park with two bedrooms, large living room with parquet wooden flooring, two bedrooms, fitted kitchen and a modern shower room. The property benefits from double glazed windows, gas radiator heating ...
A beautiful two bedroom coach house apartment built less than 12 months ago by CALA Homes and is situated on the popular Bucklers Park development. Accessed via its own front door, accomodation comprises a bright living/ dining room which is open plan to a stylish kitchen with German en...
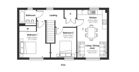
New two bedroom house in the popular Buckler Ride development. Built for renters with high energy efficiency, a modern, high spec finish, and professional management service. Also comes with solar panels. THE ACCOMMODATION OFFERS- The property benefits from kitchen/dining room an...
AVAILABLE FEBRUARY - UNFURNISHED - SOUGHT AFTER LOCATION Nestled within the sought-after Pine Ridge area, this terrace house is situated within a quiet and secluded courtyard in Crowthorne, providing a serene residential environment. Conveniently positioned near the M3/M4, t...
This stylish one bedroom apartment is part of an exclusive gated development nestled in the heart of charming Crowthorne village. The apartment offers a double bedroom, contemporary bathroom, and an open plan living area with Juliette balcony, leading to the beautifully appointed kitch...
This one bedroom second/top floor apartment is situated in the highly regarded Masefield Gardens development, which is adjacent to the grounds of Wellington College and within walking distance of the village High Street. The accommodation includes living/dining room, newly fitted kitchen, doub...
BRAND NEW home in the popular Buckler Ride development. Built for renters with high energy efficiency, a modern, high spec finish, and professional management service THE ACCOMMODATION OFFERS- Open plan kitchen/dining room with double doors out to the garden area, separate living...
New build home in the popular Buckler Ride development. Built for renters with high energy efficiency, a modern, high spec finish, and professional management service THE ACCOMMODATION OFFERS- Open plan kitchen/dining room with double doors out to the garden area, separate living roo...
*Modern Relet Property - Available for Immediate Move-In* This three-bedroom home from Leaf Living is pet friendly and includes superfast broadband. With double bedrooms, stylish kitchen & dining area, garden and private parking. Contact our team today & ask about our no deposit option.
RE-AVAILABLE home in the popular Buckler Ride development. Built for renters with high energy efficiency, a modern, high spec finish, and professional management service. KEY FEATURES • Private garden • Allocated parking for two cars • Energy efficient home, EPC rating ...
*Includes 1 month RENT FREE* This three-bedroom home from Leaf Living is pet friendly and includes superfast broadband. With double bedrooms, stylish kitchen & dining area, garden and private parking. Contact our team today & ask about our no deposit option.
*INCLUDES 2 WEEKS RENT FREE* This three-bedroom home from Leaf Living is pet friendly and includes superfast broadband. With double bedrooms, stylish kitchen & dining area, garden and private parking. Contact our team today & ask about our no deposit option.
AVAILABLE IN DECEMBER - FURNISHED - CROWTHORNE This spacious second floor apartment is located within a popular location in Crowthorne and offers generous accommodation throughout. The apartment comprises two double bedrooms, three-piece bathroom, separate kitchen and a sp...
AVAILABLE IN JANUARY - UNFURNISHED - CROWTHORNE VILLAGE - TWO BATHROOMS This beautifully presented detached family home is located on one of Crowthorne’s premier non-estate roads, within close proximity to Crowthorne Village and a selection of highly regarded schools.
**JUST RELEASED** A beautiful two bedroom coach house apartment situated on the popular Bucklers Park development. This property has been built to a high standard with energy efficiency in mind and comes with Air Source Heat Pump, EV Charger and solar panels. Accessed via its own front...
Michael Hardy Lettings; A Well Presented Semi-Detached Home In Popular Crowthorne. The accommodation comprises entrance hall with storage, spacious living room, fantastic open plan kitchen/dining room with patio doors to garden, separate utility room, downstairs double bedroom/study with washroom...

























































































































