Properties To Rent in KT2, at least 4 beds
A beautifully refurbished five-bedroom family home, perfectly positioned within the highly sought-after private Coombe Park Estate. The property is set behind secure electronic gates with video entry and features a carriage driveway providing an impressive arrival. Finished to an exceptional sta...
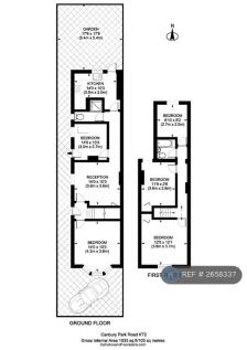
Beautifully presented four bedroom Townhouse set over three floors including a modern reception room, kitchen with integrated appliances and a dining room with access to garden and views of Bushy Park. Longer term also available, please enquire through office for further details.
A beautifully refurbished five-bedroom family home, perfectly positioned within the highly sought-after private Coombe Park Estate. The property is set behind secure electronic gates with video entry and features a carriage driveway providing an impressive arrival. Finished to an exceptional sta...
A newly refurbished and unlived in five-bedroom (all en-suite) family home, set behind electronic gates within the private Coombe Park Estate. There is an in and out driveway to the front which is remote-controlled and gated , along with a video entry system. Conveniently located for several exc...
This home effortlessly marries classic architectural grandeur with the conveniences of contemporary living, offering an impressive 7,778 square feet of exquisitely designed interior space. Boasting ten generously sized bedrooms, eight luxurious bathrooms, and six versatile reception rooms, the l...
A truly unique and outstanding Modernist 1970's five bedroom, three bathroom detached family residence, situated in an idyllic countrified setting within the heart of the Coombe Estate, with views onto a shared private lake and a gated forecourt. NO CHAIN




































































































































































