Properties To Rent in SE10
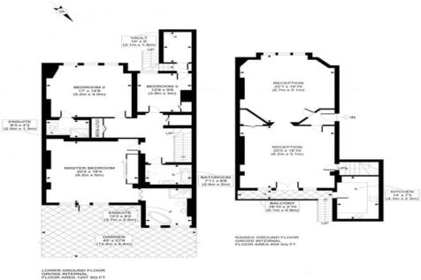
Set within the distinguished Grove Hall, a handsome period conversion on one of Greenwich’s most sought-after roads, this beautifully presented three-bedroom, three-bathroom duplex apartment offers exceptional proportions, elegant interiors, and direct access to a private garden with views over matu
A BRAND NEW, spacious 2nd floor two-bedroom apartment offering amazing views across the private landscaped gardens. Flooded with natural light, the apartment features a large living area, private balcony and plenty of built in storage. Just a 5 minute walk to North Greenwich underground station (...
Incentive T&Cs: The incentives are offered for move ins which take place prior to 18th of December 2025 on selected properties. The Incentive will be deducted from the advance rental payment. Please note that the incentives are offered at Metra Living’s discretion Metra Living reserve the r...
A luxury and modern two bedroom, two bathroom double height apartment, designed by the highly acclaimed Tom Dixon. Complete with access to residents' swimming pool, gyms, roof terraces and 24 hour concierge; No.2, Upper Riverside, Greenwich Peninsula.
Are you looking for a well located, modern apartment in Greenwich? Then you should certainly view this bright and spacious, two double bedroom, first floor purpose built flat. Accommodation boasts a large reception room with an open plan fully integrated kitchen, two double bedrooms with wardrob...
Brought to market by JOHNS&CO, this stylish studio apartment with a private balcony offers contemporary living in the heart of Greenwich Peninsula. The property boasts a bright and airy open-plan reception space with a modern kitchen complete with integrated appliances. The bedroom is well-propo...
A Rare Duplex Gem with River Views in a Prime Greenwich Location.This beautifully designed duplex apartment offers a unique layout that sets it apart from the typical flats within the development. Spread across two floors, the property features a spacious master bedroom with a modern en...









































































