to
to
Area
Price
-
Bedrooms
-
Bathrooms
-
Property type
Furnished type
Property details
Available from
Must haves
Don’t show
Student Accommodation To Let in RG1
Prioritise properties with...
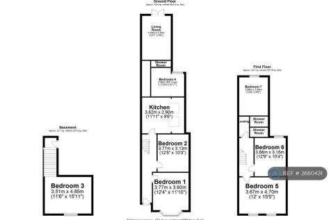
Blenheim Road, Reading
Terraced
5
2
Westgate Students are pleased to offer this 5 double bedroom house situated on the sought after Blenheim Road.The property is made up of a spacious fitted kitchen, large reception area, five double bedrooms and two modern bathrooms. Call us today to arrange a viewing on
London Road, Reading
Semi-Detached
8
8
BRAND NEW - Extremely large eight double bedroom house - EIGHT EN-SUITES - Spacious Lounge - Within a 10 minute walk to University and Reading town centre - Ideal for students - Modern and fitted kitchen - Parking Available - High quality student property - DO NOT MISS OUT - VIEW NOW!!
Page of 14