Commercial Properties For Sale in Bath And North East Somerset
Freehold Pubs, Popular surburban freehold pub on edge of Bath city centre, Inviting trade areas mixing traditional and modern decor, Substantial beer garden at rear with marquee, pergola & BBQ hut, Well-equipped commercial kitchen and chilled beer cellar, Large 3 bedroom owner's flat on upper floors
A truly unique opportunity to acquire freehold gin bar with living accommodation over within the heart of Bath. Situated within Bath World Heritage Site a short distance from Queen Square, Milsom Street, Bath Thermae Spa and the Roman Baths.
FREEHOLD FOR SALE Central Bath Offices Attractive Grade II Listed Offices Centrally located Let to Bath Office Co Ltd until May 2026 Possible alternative uses, STP. £625,000 for the Freehold Interest. DESCRIPTION The property comprises an attractive mid-terraced 5 storey Georgian prop...
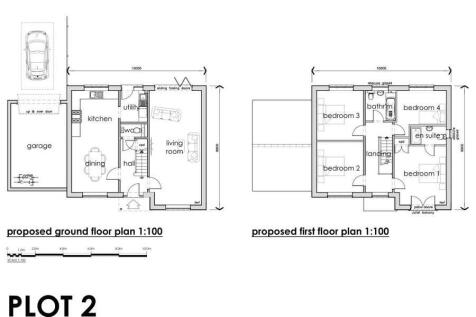
The land is rectangular, broadly level and has been cleared. The site extends to approximately 0.8 acres. The site is surrounded by residential development on its eastern, western and southern boundaries. The land to the north is also consented for residential development. PLANNING Detailed pla...
FREEHOLD INVESTMENT FOR SALE Mixed use investment Located on popular local retail parade Total annual gross rent of £27,750 Ground floor let until January 2030 Ground floor tenant in occupation since 2016 First floor let on 12 month AST DESCRIPTION The ground floor comprises a lock-up bu...
GROUND FLOOR RETAIL / OFFICE UNIT FOR SALE DESCRIPTION The property comprises a ground floor lock-up business unit (Class E) situated over ground and basement floors. The ground floor provides largely open plan sales area in a broadly L shape and the two large glazed windows overlooking St Jame...
Ground floor workshop/office unit. The office space is fitted out to a good standard and presents very well. There is a workshop area which can be used for manufacturing or the storage of stock/equipment. 4 parking spaces, Kitchen, WC and Roller Door (currently fitted as windows and pedestrian door)
Versatile retail unit situated between London Road and Walcot Street in the 'Walcot Artisan Quarter', an area well known for its characterful independents. The unit is arranged over ground and basement within a Georgian Grade II listed terrace building. It lends itself to the usual Use Class E t...
This brownfield site extends to approximately 0.63 acres and comprises a several buildings in need of renovation and conversion. These include a substantial detached period dwelling, which has previously been converted into a one-bedroom and a three-bedroom apartment, and various outbuildings his...
Please refer to auctioneer for more information **For Sale By Public Auction 12th November 2025 09:30 AM To inspect the legal documents for this property go to our website to download the legal pack** A Plot of Land Measuring Approximately 1,012 sq m (10,889 sq ft)...
FOT Pub & Hotel; Taking £700,000 pa net of VAT with great profits; Purpose-built 10 room letting block; Refurbished 17th Century village pub on busy A37 close to Bristol Airport; Bar areas; Outside seating; Car park with EV charging point; 3 bedroom private quarters; Self-contained staff apartment..
Village inn near Bath with 5 en-suite letting rooms; Set in a plot of just over 1 acre; Car park; Paddock & Gardens; Bar seats circa 75 with unique features in multiple trade areas; Nine-hole crazy golf course; Four-bedroom owner's quarters; Current trade in the region of £250,000 with great scope..
Community pub on outskirts of Bath city; Friendly locals pub with good food following; Open fireplace and original floorboards; Dining/drinking area 30; Outside terrace with 36 seating; Fully fitted commercial kitchen; Private accommodation - 2 bedrooms, kitchen, sitting room and shower room..
















































