Commercial Properties For Sale in Birkenhead, Wirral, Merseyside
Development Opportunity! A site measuring 0.212 acres, formally with full planning approved for 5 x apartments and associated communal gardens and allocated parking. Located close to Mersey Park, Birkenhead with great transport links to road and train line transport links.
PRICE REDUCED. INVESTMENT OPPORTUNITY. A fantastic, secure retail investment opportunity located on Grange Road, Birkenhead. Let to Luxury Leisure Limited on a 10 year lease from August 2021, this presents a great opportunity to invest in a property prominently located in Birkenhead.
*FOR SALE VIA ONLINE AUCTION* terms and conditions apply* We are pleased to offer to auction this potential development site, situation on Church Road. The site has been granted planning for "Erection of apartment building containing 9no (studio, 1 + 2 bedroom) open market residential ...
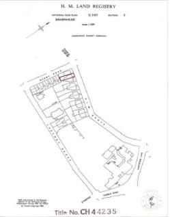
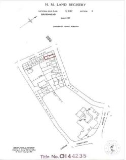
For Sale by Public Online Auction on 14/05/2025 13:00 . The property comprises approximately 0.543 acres (0.220 hectares) of grass land split into two separate parcels, under 18 separate Titles. The western parcels total approximately 0.123 acres (0.05 hectares) and the eastern parcels tota...
Guide Price: £50,000 A potential residential development opportunity comprising a rectangular shaped parcel of land extending to approximately 530 Sq.M (633 Sq.Yds). The site had approved planning permission granted in 2015 for the construction of a pair of semi-detached houses and we ...
Conway Centre extends to 42,214 sq ft GIA across four storeys and provides a mixture of office space, meeting rooms, ancillary space and staff facilities. The property, which has, until recently, been used as Council offices, will be sold with vacant possession. The property is located to the n...
The opportunity comprises of the Hamilton Building, which totals 32,691 sq ft NIA across four storeys and is suitable for re-use, refurbishment or redevelopment subject to planning. The property is located at the south eastern edge of the site, with c.110 car parking spaces to the north, south ...
Cleared residential development site with planning permission for 132 one and two bedroom apartments and 1,140 sqm of non-residential floorspace to the ground floor. Situated in close proximity to a number of regeneration projects. The site extends to 0.24 ha (0.59 acres) with an existing surface...
A fantastic opportunity to purchase development site on Dock Road near to the Wirral Waters Development, the largest regeneration project in the UK. The site includes a former public house and yard and permission has been granted for the demolition of existing building (sui generis publi...
Exciting office building with potential for refurbishment and redevelopment!! Located in New Ferry this former bank building which has been recently used for office purposes is a great opportunity for someone who can release its potential to re-develop the existing building and parking area.
Mistoria Estate Agents in association with its Auction Partners Town & Country are pleased to offer for sale in the heart of Birkenhead on Cleveland Street, this well-located three-floor commercial unit presents an exceptional opportunity for both investment and development. With a proven income ...
a unique opportunity for both investors and developers. Spanning an expansive 2,336 square feet, this large commercial unit, built in 1880, boasts a rich heritage and character that is hard to find in modern developments. Currently operating as a public house, the property is situated in...
Nestled in the charming Old Chester Road of Higher Bebington, Wirral, lies a remarkable commercial property that exudes potential and opportunity. This former bank unit, spread over three floors, has been transformed into a popular Mediterranean restaurant, offering a delightful culinary experien...
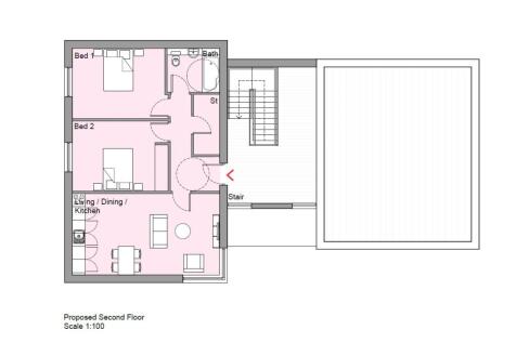
Development Opportunity! A site measuring 0.212 acres, formally with full planning approved for 5 x apartments and associated communal gardens and allocated parking. Located close to Mersey Park, Birkenhead with great transport links to road and train line transport links.
*Guide Price: £60,000 +. Public Auction : Thursday, 11 December 2025 at 02:00 pm, Virtual Live Stream Online Auction GET READY TO BID BY VISITING THE AUCTIONEERS WEBSITE GUIDE PRICES & RESERVE PRICES Guide Price An indication of the seller’s current minimum acceptable pri...




























