Commercial Properties For Sale in Braintree, Essex
This EXCLUSIVE DEVELOPMENT is split into two parts, A very exclusive trio of expansive properties with water frontage, we expect these to have a gated entrance and estate fencing to the waterside for security and safety. The second part is a more modest development with a range ...
Comprising an attractive, open plan office building, the accommodation is carpeted throughout benefitting from suspended ceilings, raised floors, recessed covered strip lighting, air-conditioning, comfort cooling and heating three phase electricity, an alarm system and aluminium cased double glaz...
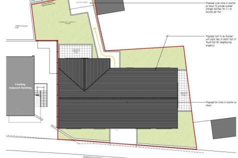
This Sale offers a fantastic opportunity with secured planning permission for 6 homes and an office, with associated parking, bin & Cycle stores. With a proposed GDV of £1,750,000 Approved planning permission can be found via the BDC planning portal: approval numb...
A rare chance to acquire a former water tower with granted planning permission for residential conversion, located in the village of High Garrett, roughly three miles north of Braintree. This exceptional project offers the potential for a stunning 'Grand Designs'-style home spread over three leve...
FEES NEGOTIABLE – attractively priced to sell’ LAND FOR SALE - This exceptional opportunity offers the chance to acquire the remaining parts of St John’s Avenue, ideally situated close to the town centre and just a short walk from the mainline train station. This rare opportunity presents potenti...





































