Land For Sale in Glasgow
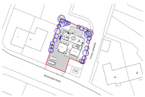
A rare opportunity to acquire a building plot with conditional planning permission for a 2 storey four/five detached villa extending to approximately 244 Sqm (2626 Sqft), located within popular pocket of East Renfrewshire, close to local amenities, services and popular East Renfrewshire Schooling.
PRIME NEW LISTING. We are excited to present this 4000 square ft Plot of Land located within a prime location in Glasgow.This expansive 4000 square ft plot of land previously held full planning permission to construct a warehouse storage unit, offering a unique and versatile opportunity.
Prime opportunity to acquire a centrally located development site in the heart of Glasgow Full Planning Permission has been granted for 359 Build to Rent apartments, featuring roof terraces and commercial space at ground level. The site measures approximately 1.14 acres (0.46 ha) within the Cow...
RESIDENTIAL DEVELOPMENT OPPORTUNITY Our clients have obtained a full detailed planning consent subject to execution of Section 75 (details in the information pack) for a redevelopment of their property. The reference number for the planning application is TP/ED/18/0871. All th...
A rare opportunity to purchase this private and secluded plot in the centre of Uddingston. This parcel of land in the heart of Uddingston was previously run as a commercial family business and has recently been granted permission to build three modern detached villas. The former building...
This substantial plot of land extends to just over 5 acres and is set on the outskirts of Newton Farm. There is no planning for the site however it may be suited for commercial storage and in time there maybe additional opportunities subject to planning consents. The gated site has a ser...
A wonderful opportunity to design and build a stunning, substantial home on the periphery of Uddingston. We have five large serviced plots available within this small exclusive development which enjoys a lovely setting adjacent to Calderbraes Golf Course, whilst being only a few minutes drive fro...
A wonderful opportunity to design and build a stunning, substantial home on the periphery of Uddingston. We have five large serviced plots available within this small exclusive development which enjoys a lovely setting adjacent to Calderbraes Golf Course, whilst being only a few minutes drive fro...
A wonderful opportunity to design and build a stunning, substantial home on the periphery of Uddingston. We have five large serviced plots available within this small exclusive development which enjoys a lovely setting adjacent to Calderbraes Golf Course, whilst being only a few minutes drive fro...
A wonderful opportunity to design and build a stunning, substantial home on the periphery of Uddingston. We have five large serviced plots available within this small exclusive development which enjoys a lovely setting adjacent to Calderbraes Golf Course, whilst being only a few minutes drive fro...
A wonderful opportunity to design and build a stunning, substantial home on the periphery of Uddingston. We have five large serviced plots available within this small exclusive development which enjoys a lovely setting adjacent to Calderbraes Golf Course, whilst being only a few minutes drive fro...
A rare opportunity to acquire a building plot with conditional planning permission for a 2 storey four/five detached villa extending to approximately 244 Sqm (2626 Sqft), located within popular pocket of East Renfrewshire, close to local amenities, services and popular East Renfrewshire Schooling.
An exciting development opportunity to purchase this site on the periphery of Uddingston with planning permission to build seven flats. The approved development proposes a modern four story block which will house seven private flats with modern contemporary open plan living, two bedrooms...
Plot 2, Huntershill Bishopbriggs G64 1RP A truly unique chance to buy Plot 2, a generous sized, residential development plot with Planning in Principle. The plots are situated in the village of Bishopbriggs, enjoying a delightful position and conveniently situated close to local amenities incl...
For sale on 27 November 2025 Our national property auction will be broadcast online with live auctioneers. To bid by proxy, online, or by phone, please submit your registration form no later than 5pm the day before the auction. The auction will commence at 09:00.















