Commercial Properties For Sale in North London
Freehold Investment - Archway Road, Highgate N6 5BBA rare opportunity to purchase this freehold investment property situated on the popular Archway Road, Highgate N6.The building comprises five self-contained flats (two one-bedroom flats and three studio flats), all of which are currently let, to...
Cleared site with planning consent for 2x 4-bedroom houses in a prime location adjacent to Hampstead Heath. Cleared site of approximately 0.008 ha (0.02 acre) with planning consents (Ref: APP/X5210/W/20/3261840 and APP/X5210/Y/20/3261841) for a residential development of two 4-bedroom ho...
The property is situated in a highly prominent location on the North side of the North Circular Road (A406) approx. 0.6miles from junct 1 of the M1 and Edgware Road. There is excellent road communication to and from Central London. The building is being fully refurbished and will provide approx 7...
INVESTMENT - New to the market is this FREEHOLD end of terrace building in central West Hampstead, spread over 5 floors (2,202 sqft), comprising a ground floor COMMERCIAL UNIT, which is subject to a commercial lease (A3), and both RESIDENTIAL FLATS above. Key Features COMMERCIAL...
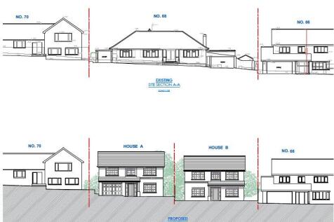
** DEVELOPMENT OPPORTUNITY ** Planning permission has been granted for: 'Demolition of the existing dwelling and erection of 2no. two-storey detached dwelling houses with associated amenity space, refuse storage and off street parking'. Situated in the prestigious and sought...
Havilands are delighted to offer For Sale, this mixed use property located on The Green, N21. The property is arranged in two distinct and income-producing elements. To the front of the site is a well-established dental practice, laid out over ground and first floors and extending to app...
Prime Investment Opportunity in Maida Vale Curtis and Parker are thrilled to present this exceptional investment opportunity, tailor-made for savvy investors seeking substantial returns and strategic growth. Nestled in the heart of Maida Vale, this freehold block of flats offers a rare c...
Anthony James Manser are very pleased to present this virtual freehold office investment to the market. The investment comprises approximately 2000 sq ft of high quality office accommodation currently divided into two separate units with shared toilet facilities. The first floor front office i...
Offered Chain free is this plot with building potential in the heart of Stoke Newington located close to transport links, shops and amenities. Fronting Stroke Newington Church Street is this cleared site for redevelopment fronting onto the exceptional desirable street thoroughfare. We conside...
This mixed-use investment property presents an excellent opportunity in a highly convenient location, positioned between Tufnell Park and Archway (Northern Line) underground stations and close to Upper Holloway Overground. The area benefits from an extensive range of local shops, bars, restaurant...
Fronting Stroke Newington Church Street with a warehouse to the rear. Part Cleared site with a warehouse to the rear of the site. The front part is cleared for redevelopment fronting onto the exceptional desirable street thoroughfare. We consider the site suitable for mixed use Re-development,...
Prime Investment Opportunity – Ideal for Pilates Studio, Gym or Wellness Use Lexingtons are pleased to offer this substantial double-fronted commercial property on busy Malden Road, NW5, perfectly positioned between Chalk Farm, Belsize Park, and Kentish Town West stations, with Gospel Oa...
Part of a new mixed used DEVELOPMENT, the building is spread over 4 LEVELS with an internal lift servicing ALL FLOORS. The property is considered suitable for a VARIETY of businesses/occupiers. Offering a BLANK CANVASS for new owners in the heart of Islington.
Opportunity to acquire an ongoing rental investment within a detached house where the property has been split horizontally to create two independent dwellings consisting of a three bedroom and four bedroom property and both with their own private gardens. Between Sunny Hill and St Mar...
High specification self-contained freehold office of approx. 3111 SQ. FT. (289 SQ. M.) in a secure gated business park. The property comprises of a ground, first and mezzanine floor and has been fitted out to a very high specification including Cat 7 data cabling, fibre optic internet co...
Freehold Investment Opportunity | Bruce Grove, N17Key Features: Freehold building 2 x Shops and Uppers (1 x 3 bed Flat rented AST 1 x Flat sold leasehold with ground rent income) Two spacious ground floor commercial units (approx. 1,000 sq ft each) Each unit includes access to a privat...
Preliminary Sales Particulars. Freehold Residential & Commercial Investment Opportunity. Situated in Turnpike Lane N8 0EP the property comprises of a Freehold Building with a ground floor Lock up Shop Unit and Residential accommodation comprising 2 x 1 Bedroom Flats on First & Second Floo...
We are pleased to be able to bring to the market a rarely available ground floor shop with office to rear and residential two storey upper part which is offered for sale freehold.The shop measures some 1,100 sq ft with office to rear of approximately 250 sq ft additionally and there is ...











